CAD频道
CAD图库
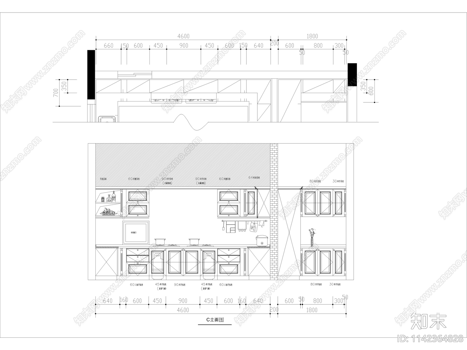
定制家居家具厨房橱柜 图库
1/
3
Previous
Next
定制家居家具厨房橱柜CAD下载
ID: 1142364828
复制
上传作者
奋斗的小鸟
上传时间
2023-08-23
文件大小
7.05M
设计风格:
现代简约
CAD版本:
CAD2004
包含文件:
CAD
授权
普通
立即下载
收藏
分享
举报
相关推荐
综合
家具图库
柜子
沙发
桌椅
床
吧台
榻榻米
椅子
桌子
遮阳伞