CAD频道
CAD图库
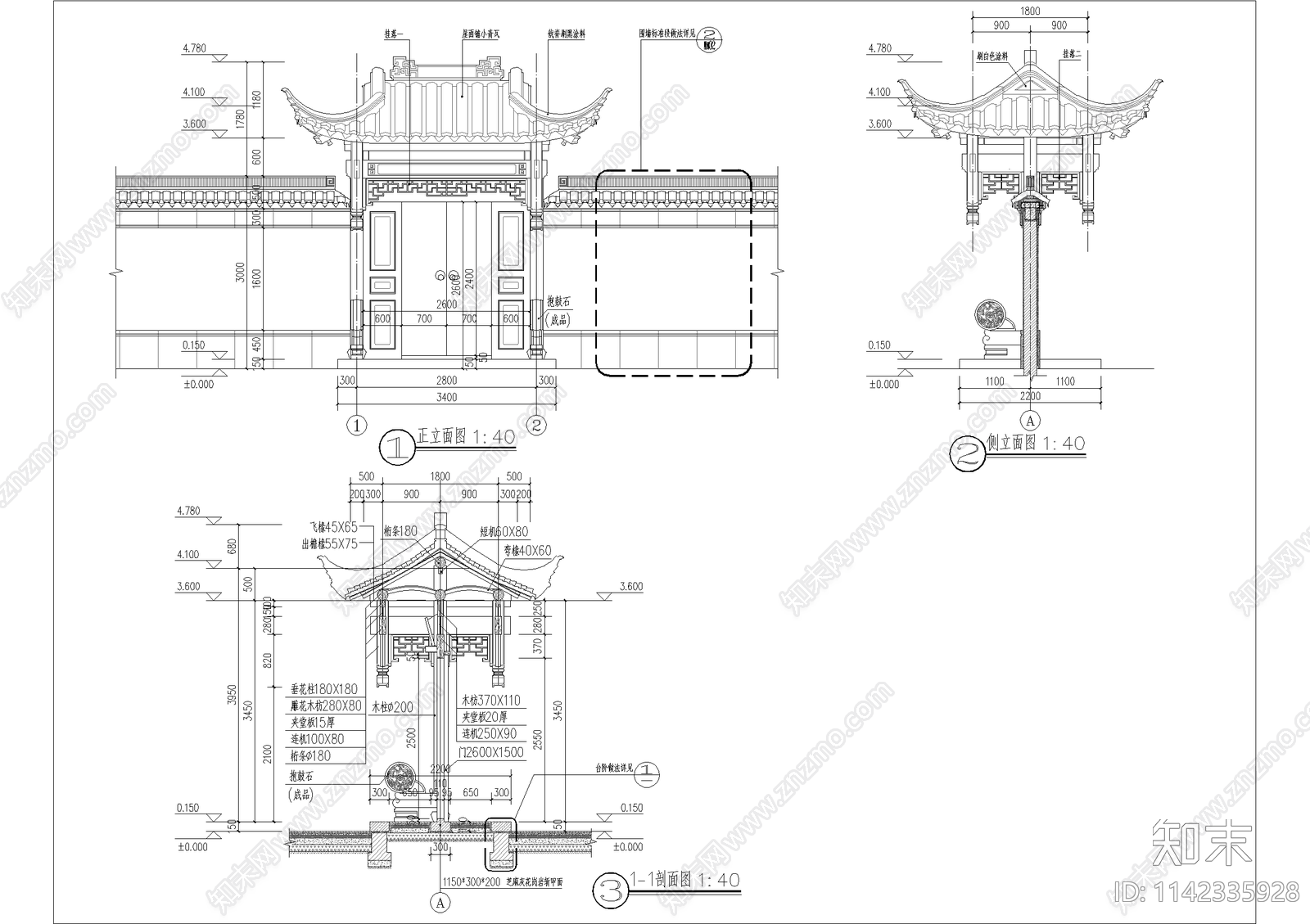
中式将军门 施工图 通用节点
1/
3
Previous
Next
中式将军门CAD下载
ID: 1142335928
复制
上传作者
叮铃叮铃(互粉)
上传时间
2023-08-23
文件大小
0.86M
设计风格:
中式
CAD版本:
CAD2007
包含文件:
CAD
授权
独家
立即下载
收藏
分享
举报
相关推荐
综合
古建
其他古建筑
祠堂
寺庙
徽派建筑
仿古建筑