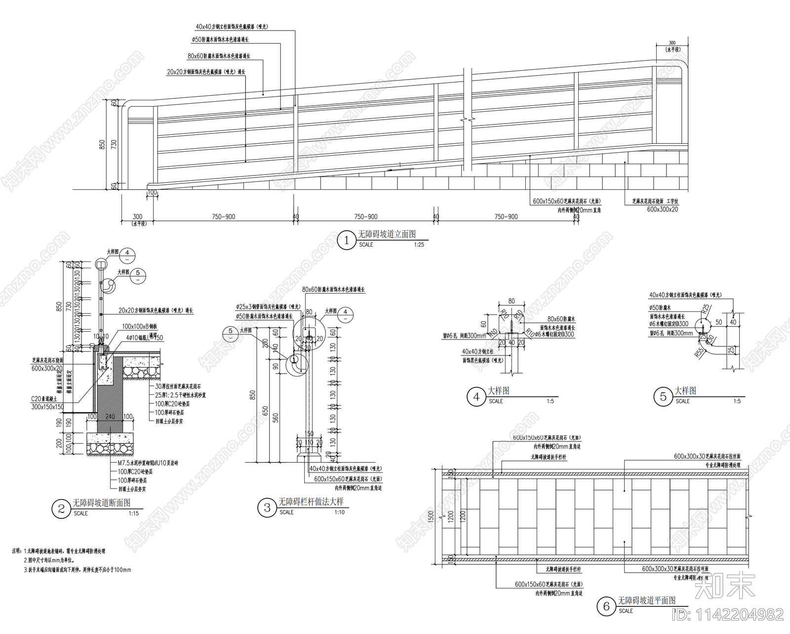
无障碍坡道详图施工图下载【ID:1142204982】

无障碍坡道详图CAD下载

ID: 1142204982
复制
上传作者
457145457145

上传时间2023-08-21

文件大小1.14M

设计风格:现代简约

CAD版本:CAD2006

包含文件:CAD

授权普通

立即下载
收藏
分享
举报
相关推荐
综合
景观小品
坡道
亭子
廊架
景墙
综合景观小品
雨棚
围墙
挡土墙
入口