CAD频道
CAD图库
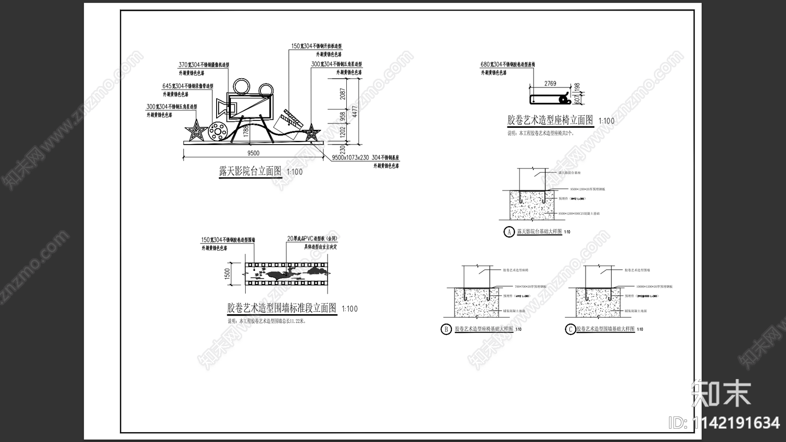
露天影院改造 施工图 局部景观
1/
4
Previous
Next
露天影院改造CAD下载
ID: 1142191634
复制
上传作者
天选搬砖
上传时间
2023-08-21
文件大小
6.85M
设计风格:
现代简约
CAD版本:
CAD2004
包含文件:
CAD
授权
独家
立即下载
收藏
分享
举报
相关推荐
综合
景观小品
综合景观小品
亭子
廊架
景墙
雨棚
围墙
挡土墙
入口
景观坐凳