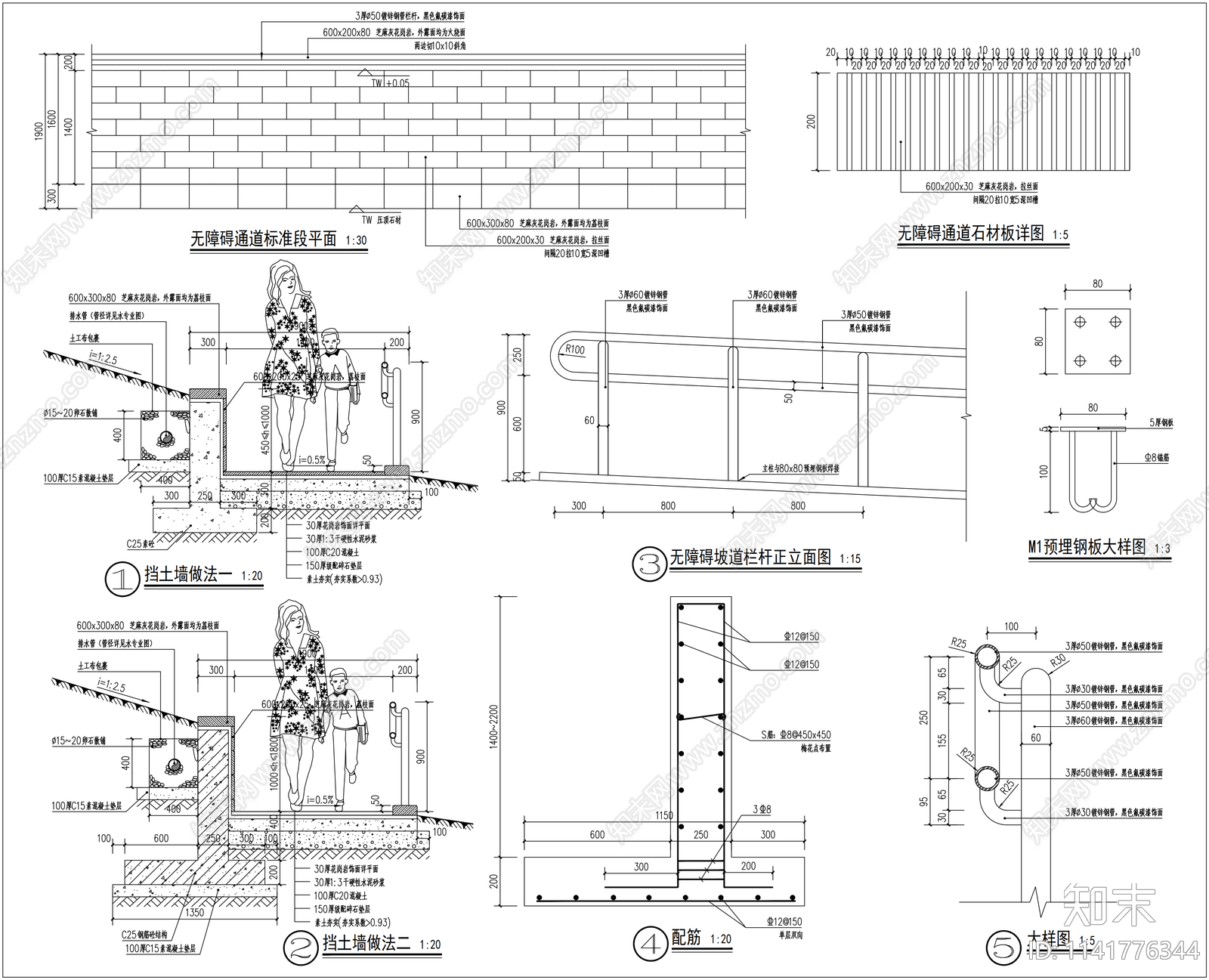
无障碍通道标准段详图施工图下载【ID:1141776344】

无障碍通道标准段详图CAD下载

ID: 1141776344
复制
上传作者
704564704564

上传时间2023-08-15

文件大小2.28M

设计风格:现代简约

CAD版本:CAD2006

包含文件:CAD

授权普通

立即下载
收藏
分享
举报
相关推荐
综合
景观小品
综合景观小品
亭子
廊架
景墙
雨棚
围墙
挡土墙
入口
景观坐凳