1/7


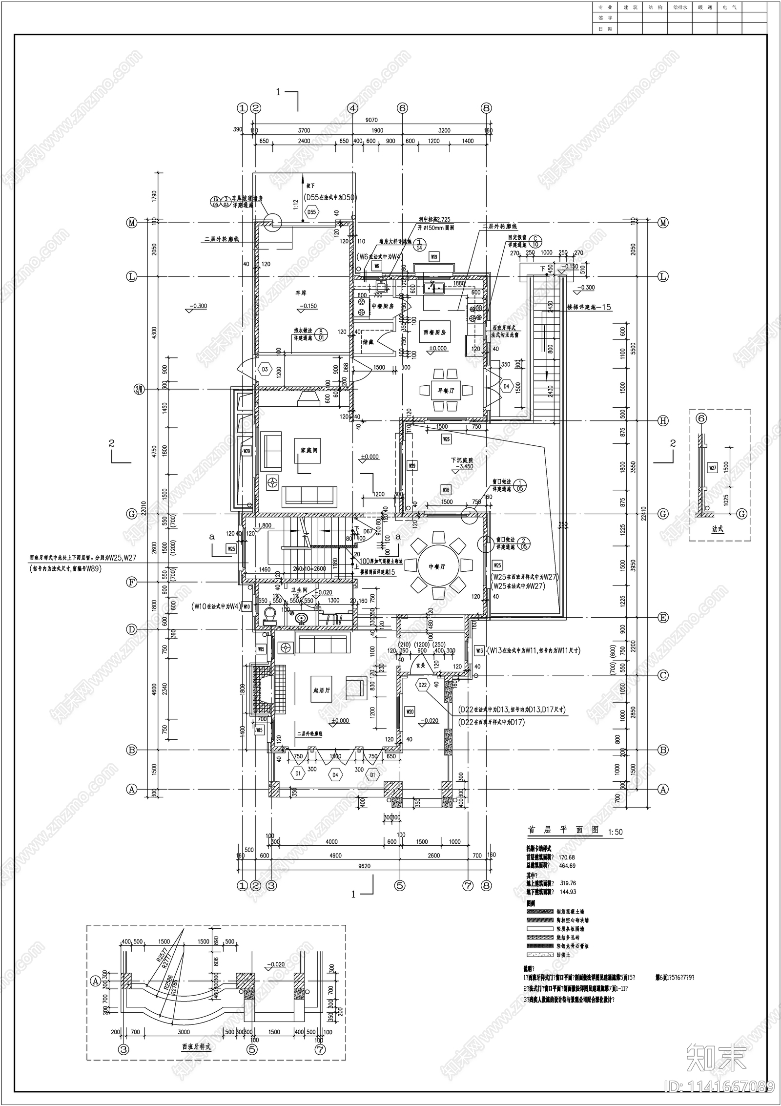
法式独栋别墅建筑17套CAD下载
ID: 1141667089
复制
上传作者
VVAStudio
VVAStudio上传时间2023-08-14
文件大小165.78M
设计风格:现代简约
CAD版本:CAD2010
包含文件:CAD
授权普通
立即下载
收藏
分享
举报
相关推荐
综合
居住建筑
别墅建筑
住宅楼建筑
四合院
其他居住建筑
高层住宅
多层住宅
低层住宅
公寓建筑
联排住宅


VVAStudio上传时间2023-08-14
文件大小165.78M
设计风格:现代简约
CAD版本:CAD2010
包含文件:CAD
授权普通