1/3


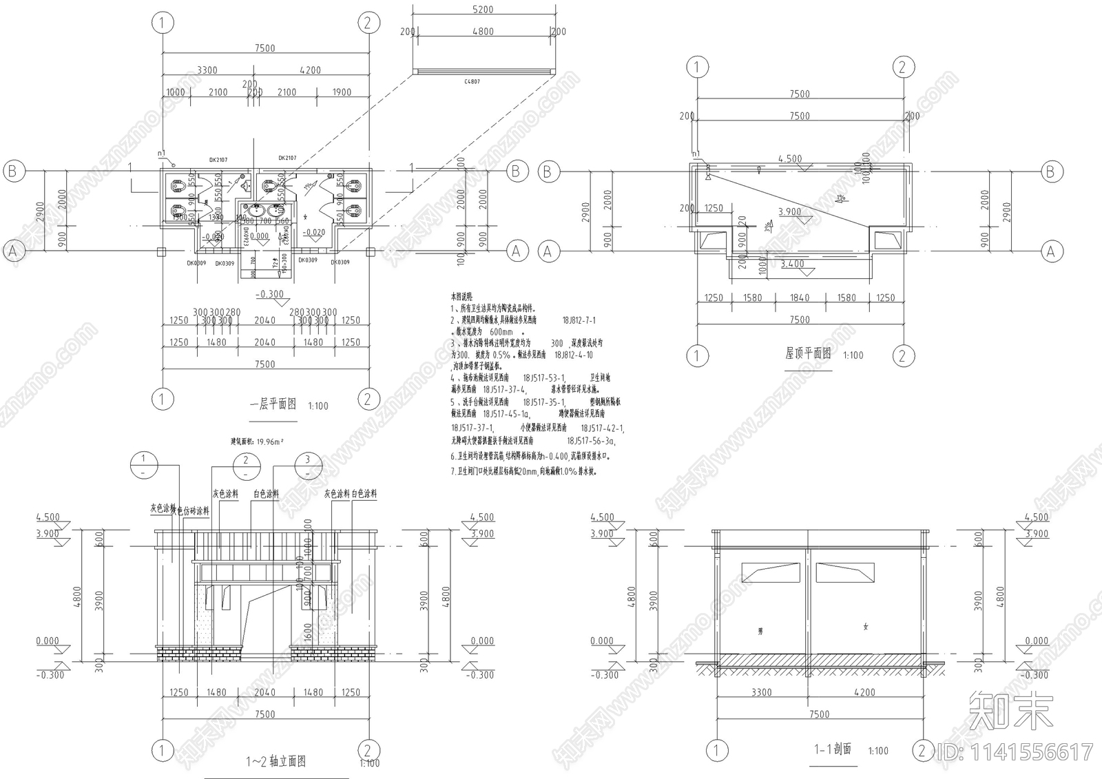
农村小型厕所建筑CAD下载
ID: 1141556617
复制
上传作者
74944964
74944964上传时间2023-08-12
文件大小2.08M
设计风格:现代简约
CAD版本:CAD2010
包含文件:CAD
授权独家
立即下载
收藏
分享
举报
相关推荐
综合
公共建筑
公厕
会议中心建筑
行政机构建筑
其他公共建筑
医院建筑
门卫室建筑
停车楼
消防站
集装箱


74944964上传时间2023-08-12
文件大小2.08M
设计风格:现代简约
CAD版本:CAD2010
包含文件:CAD
授权独家