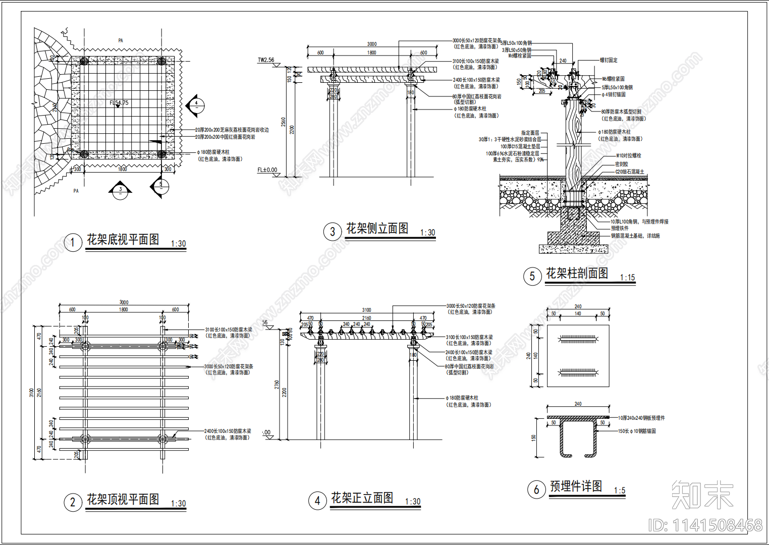
庭院方形花架施工图下载【ID:1141508468】

庭院方形花架CAD下载

ID: 1141508468
复制
上传作者
__叮咚__叮咚

上传时间2023-08-11

文件大小0.19M

设计风格:现代简约

CAD版本:CAD2004

包含文件:CAD

授权独家

立即下载
收藏
分享
举报
相关推荐
综合
景观小品
廊架
亭子
景墙
综合景观小品
雨棚
围墙
挡土墙
入口
景观坐凳