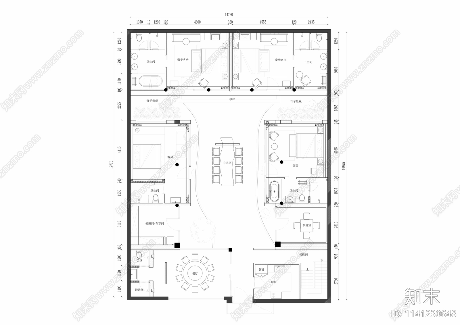
民宿平面图施工图下载【ID:1141230648】

民宿平面图CAD下载

ID: 1141230648
复制
上传作者
匠心匠人匠心匠人

上传时间2023-08-08

文件大小0.29M

设计风格:现代简约

CAD版本:CAD2000

包含文件:CAD

授权独家

立即下载
收藏
分享
举报
相关推荐
综合
平面图
工装平面图
景观平面图
规划平面图
其他平面图
小区平面图