1/8


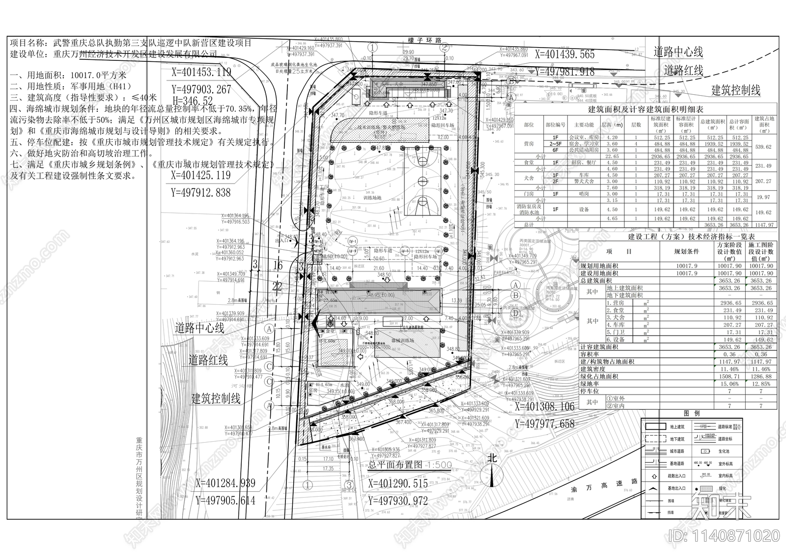
武警执勤第三支队新营区建筑CAD下载
ID: 1140871020
复制
上传作者
曾经的曾经
曾经的曾经上传时间2023-08-03
文件大小141.81M
设计风格:现代简约
CAD版本:CAD2014
包含文件:CAD
授权独家
立即下载
收藏
分享
举报
相关推荐
综合
公共建筑
其他公共建筑
会议中心建筑
公厕
行政机构建筑
医院建筑
门卫室建筑
停车楼
消防站
集装箱


曾经的曾经上传时间2023-08-03
文件大小141.81M
设计风格:现代简约
CAD版本:CAD2014
包含文件:CAD
授权独家