CAD频道
CAD图库
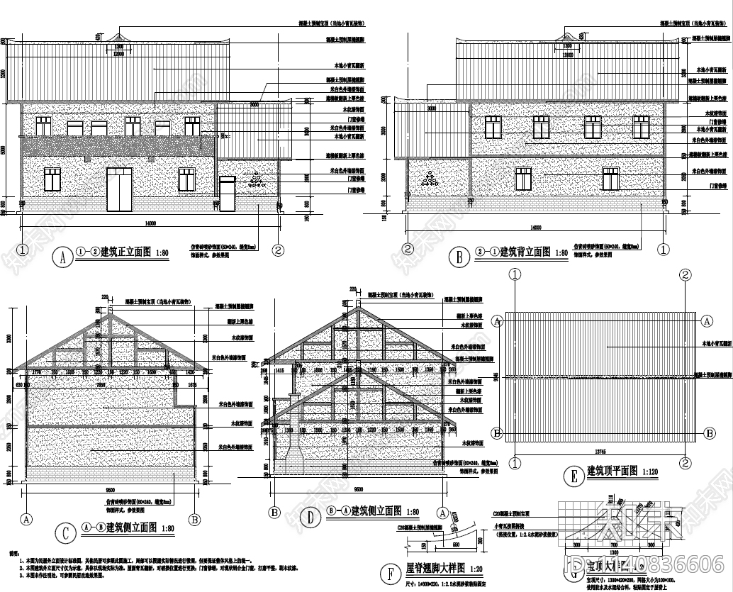
美丽乡村建筑外立面改造 施工图 自建房
1/
2
Previous
Next
美丽乡村建筑外立面改造CAD下载
ID: 1140836606
复制
上传作者
L
上传时间
2023-08-03
文件大小
0.31M
设计风格:
现代简约
CAD版本:
CAD2004
包含文件:
CAD
授权
独家
立即下载
收藏
分享
举报
相关推荐
综合
居住建筑
别墅建筑
住宅楼建筑
四合院
其他居住建筑
高层住宅
多层住宅
低层住宅
公寓建筑
联排住宅