
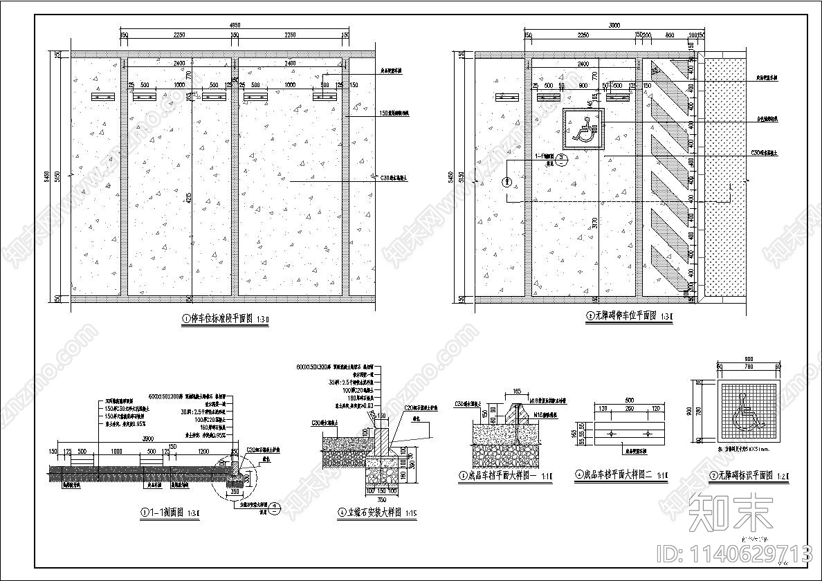
透水混凝土停车位通用详图CAD下载
ID: 1140629713
复制
上传作者
MONKEY SUN
MONKEY SUN上传时间2023-07-31
文件大小3.02M
设计风格:现代简约
CAD版本:CAD2004
包含文件:CAD
授权独家
立即下载
收藏
分享
举报
相关推荐
综合
景观小品
停车位
亭子
廊架
景墙
综合景观小品
雨棚
围墙
挡土墙
入口

MONKEY SUN上传时间2023-07-31
文件大小3.02M
设计风格:现代简约
CAD版本:CAD2004
包含文件:CAD
授权独家