1/2


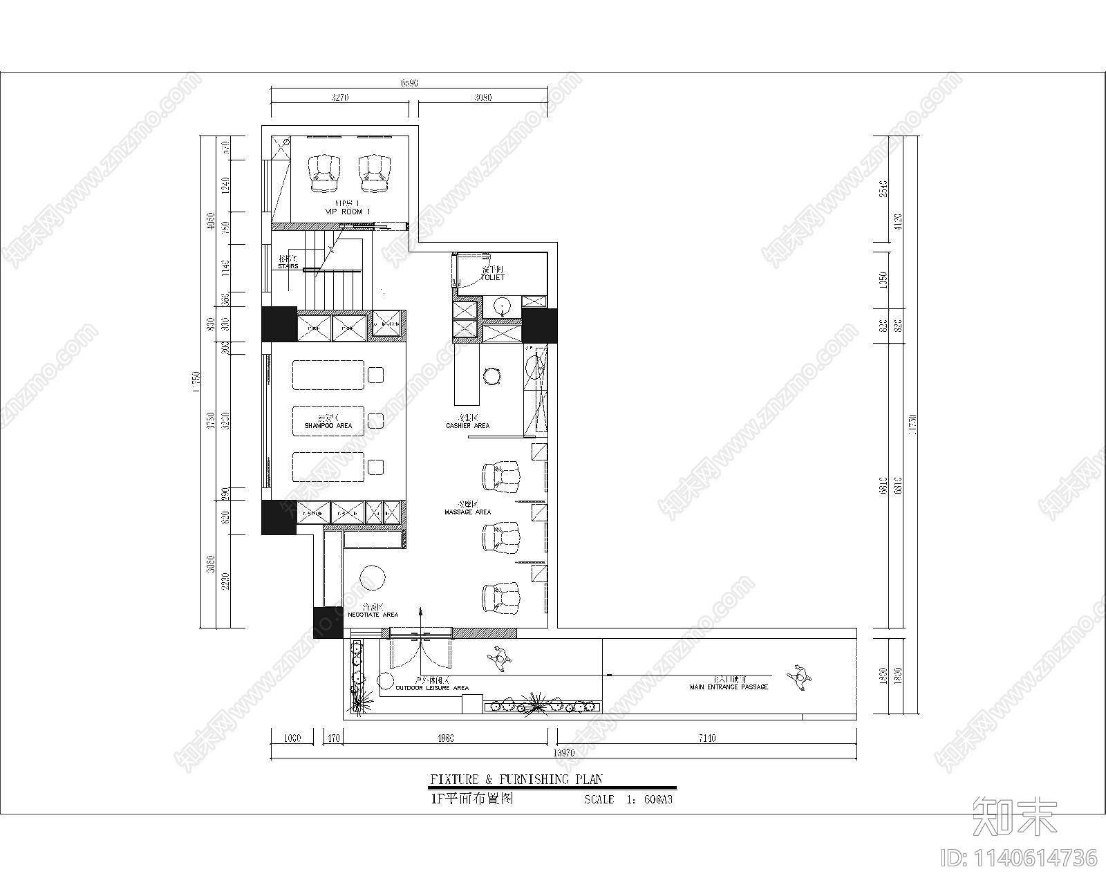
理发店平面布置图CAD下载
ID: 1140614736
复制
上传作者
Design Hh
Design Hh上传时间2023-07-31
文件大小3.44M
设计风格:现代简约
CAD版本:CAD2006
包含文件:CAD
授权独家
立即下载
收藏
分享
举报
相关推荐
综合
平面图
工装平面图
景观平面图
规划平面图
其他平面图
小区平面图


Design Hh上传时间2023-07-31
文件大小3.44M
设计风格:现代简约
CAD版本:CAD2006
包含文件:CAD
授权独家