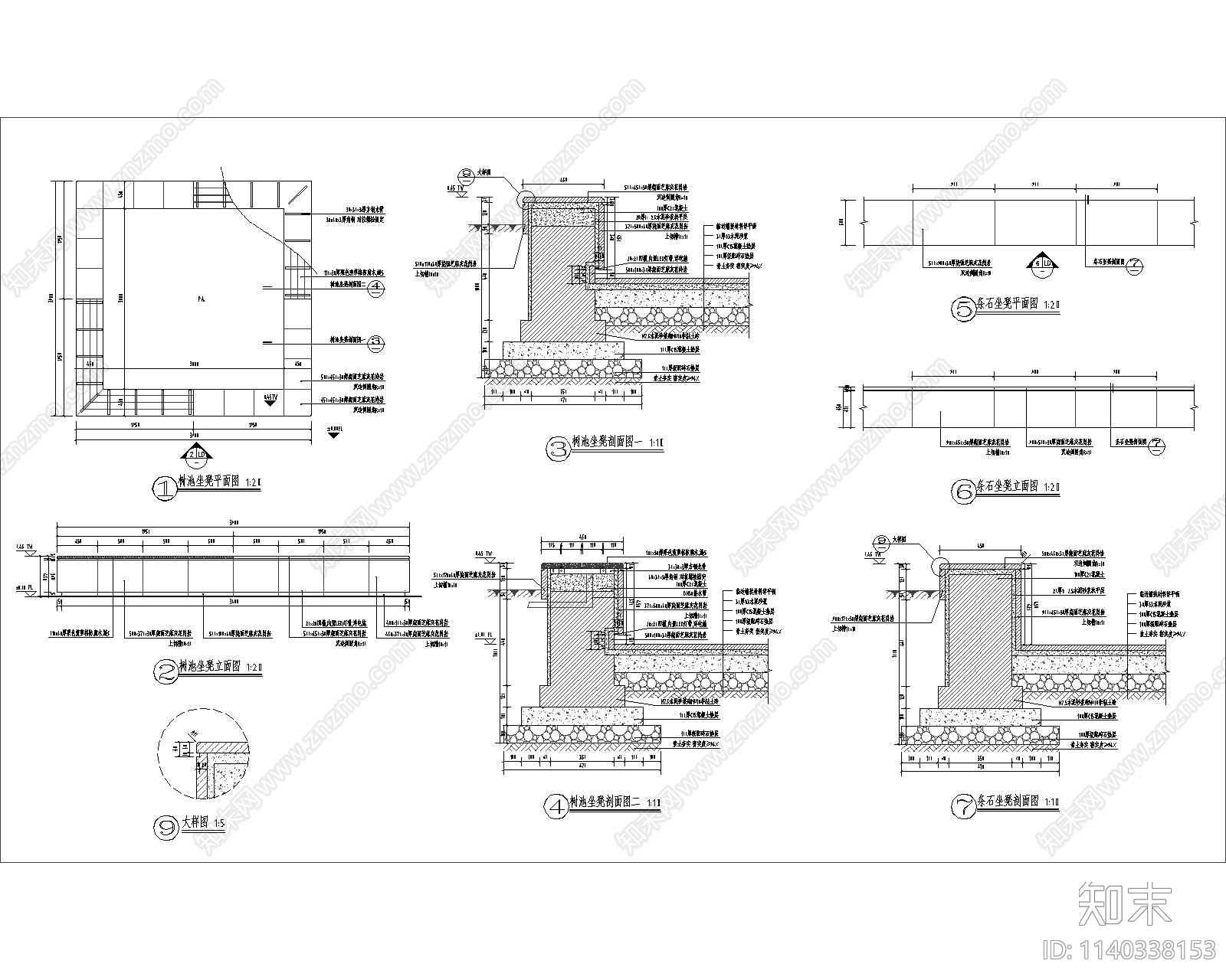
方形石材木质树池坐凳详图施工图下载【ID:1140338153】

方形石材木质树池坐凳详图CAD下载

ID: 1140338153
复制
上传作者
行大家之便利行大家之便利

上传时间2023-07-27

文件大小0.28M

设计风格:现代简约

CAD版本:CAD2004

包含文件:CAD

授权独家

立即下载
收藏
分享
举报
相关推荐
综合
景观小品
树池
亭子
廊架
景墙
综合景观小品
雨棚
围墙
挡土墙
入口