CAD频道
CAD图库
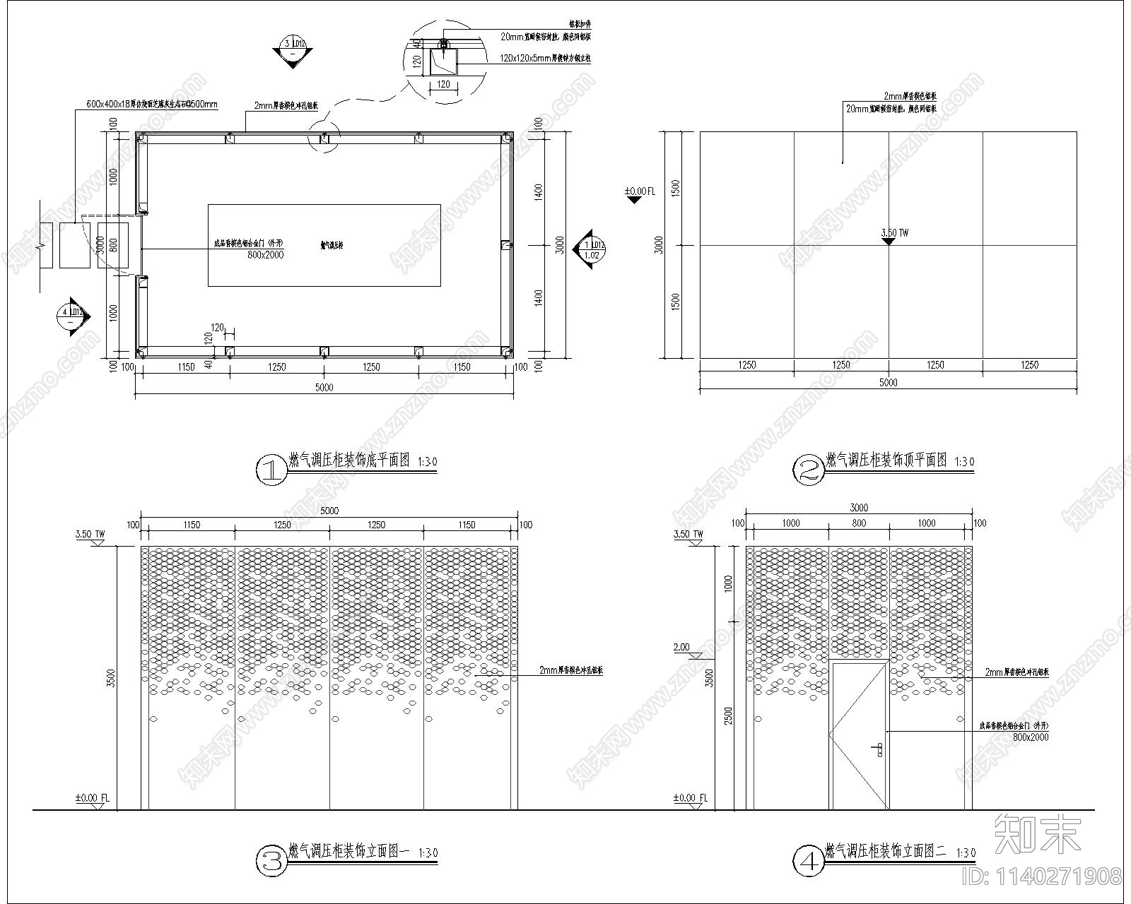
燃气调压柜装饰详图 施工图 柜类 家具节点详图
1/
2
Previous
Next
燃气调压柜装饰详图CAD下载
ID: 1140271908
复制
上传作者
行大家之便利
上传时间
2023-07-26
文件大小
0.29M
设计风格:
--
CAD版本:
CAD2004
包含文件:
CAD
授权
独家
立即下载
收藏
分享
举报
相关推荐
综合
家具节点详图
柜体节点
吧台节点
壁炉节点
卡座节点
前台节点
综合家具节点