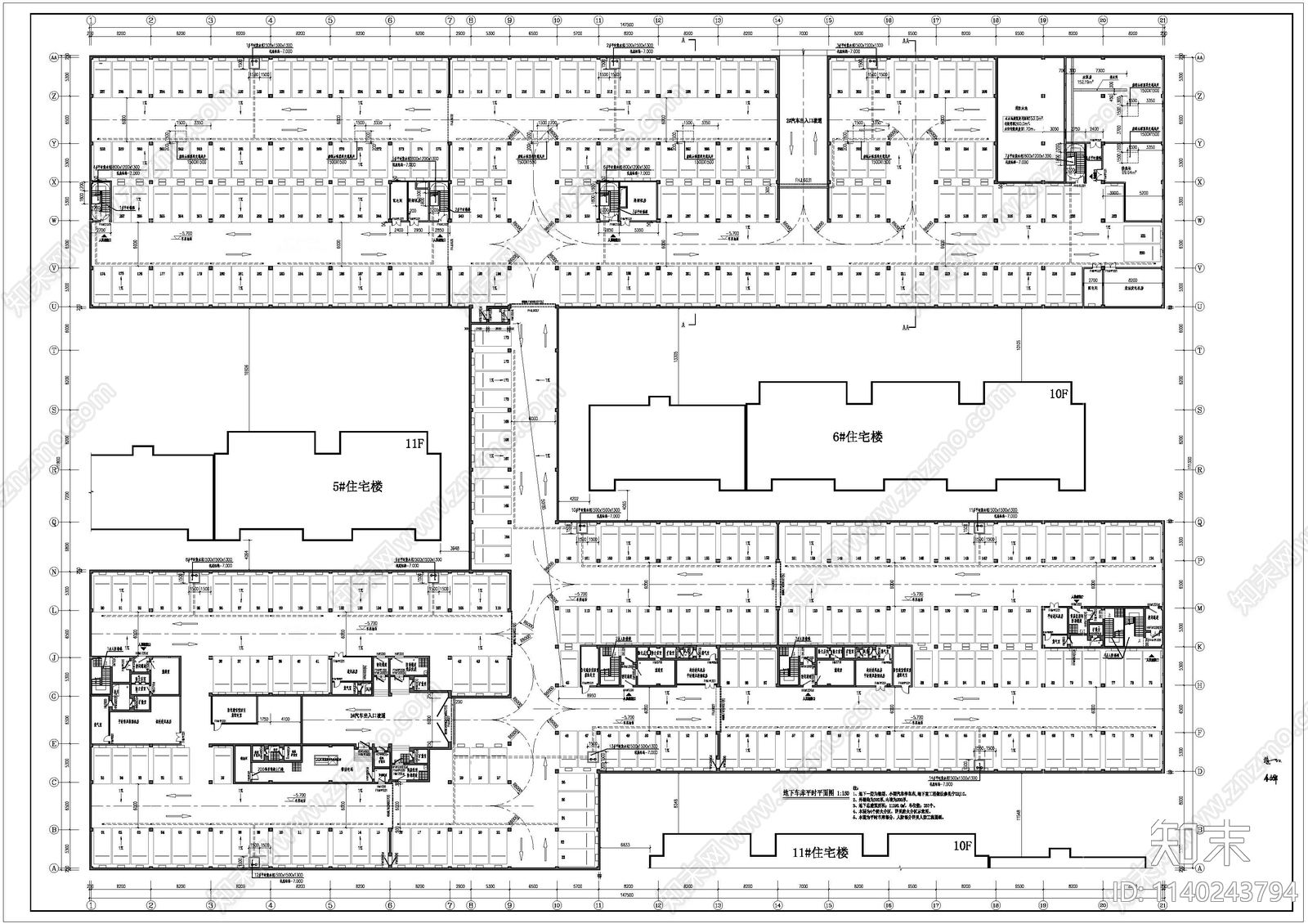
地下车库及人防工程平面图施工图下载【ID:1140243794】

地下车库及人防工程平面图CAD下载

ID: 1140243794
复制
上传作者
院前的小屋院前的小屋

上传时间2023-07-26

文件大小1.36M

设计风格:现代简约

CAD版本:CAD2013

包含文件:CAD

授权普通

立即下载
收藏
分享
举报
相关推荐
综合
平立面系统图
建筑平面图
平面图
立面图/剖面图
家装平面图