CAD频道
CAD图库
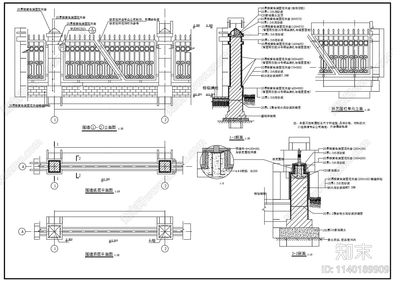
铁艺栏杆围墙景观小品 施工图
1/
3
Previous
Next
铁艺栏杆围墙景观小品CAD下载
ID: 1140189909
复制
上传作者
小小鱼鱼
上传时间
2023-07-25
文件大小
0.24M
设计风格:
现代简约
CAD版本:
CAD2000
包含文件:
CAD
授权
独家
立即下载
收藏
分享
举报
相关推荐
综合
景观小品
综合景观小品
亭子
廊架
景墙
雨棚
围墙
挡土墙
入口
景观坐凳