CAD频道
CAD图库
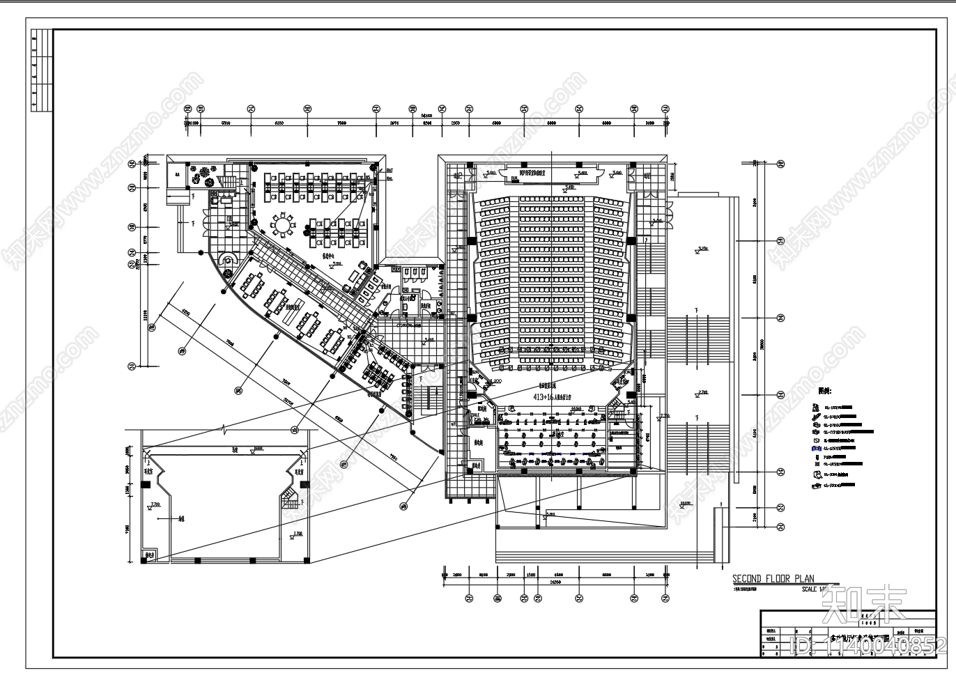
会议室灯光与音响系统 施工图
1/
6
Previous
Next
会议室灯光与音响系统CAD下载
ID: 1140040852
复制
上传作者
小小鱼鱼
上传时间
2023-07-23
文件大小
0.93M
设计风格:
现代简约
CAD版本:
CAD2000
包含文件:
CAD
授权
独家
立即下载
收藏
分享
举报
相关推荐
综合
器材设备图库
电器
运动器材
晾衣架
帐篷
娱乐器材
儿童器材
消防器材
监控
乐器