1/3


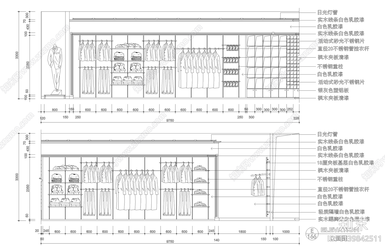
服装店展架展柜立面CAD下载
ID: 1139842511
复制
上传作者
金一CAD图库(互粉)
金一CAD图库(互粉)上传时间2023-07-20
文件大小0.41M
设计风格:现代简约
CAD版本:CAD2007
包含文件:CAD
授权独家
立即下载
收藏
分享
举报
相关推荐
综合
家具图库
柜子
沙发
桌椅
床
吧台
榻榻米
椅子
桌子
遮阳伞


金一CAD图库(互粉)上传时间2023-07-20
文件大小0.41M
设计风格:现代简约
CAD版本:CAD2007
包含文件:CAD
授权独家