CAD频道
CAD图库
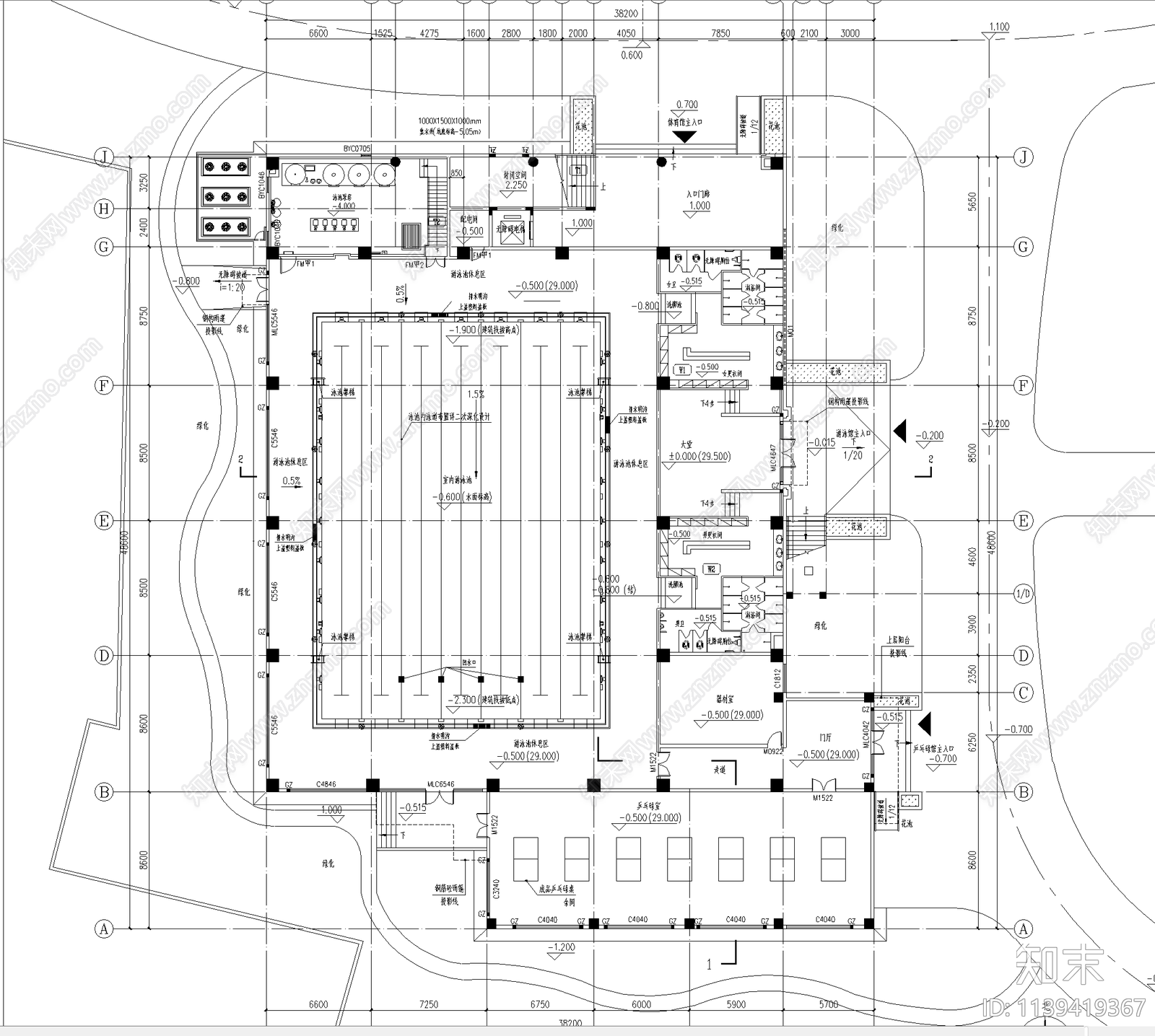
中学体育馆建筑 施工图
1/
4
Previous
Next
中学体育馆建筑CAD下载
ID: 1139419367
复制
上传作者
GqZZ
上传时间
2023-07-15
文件大小
1.5M
设计风格:
现代简约
CAD版本:
CAD2008
包含文件:
CAD
授权
独家
立即下载
收藏
分享
举报
相关推荐
综合
文化空间
体育馆
博物馆
图书馆
其他文化空间
美术馆
游泳馆
科技馆
剧院