1/9


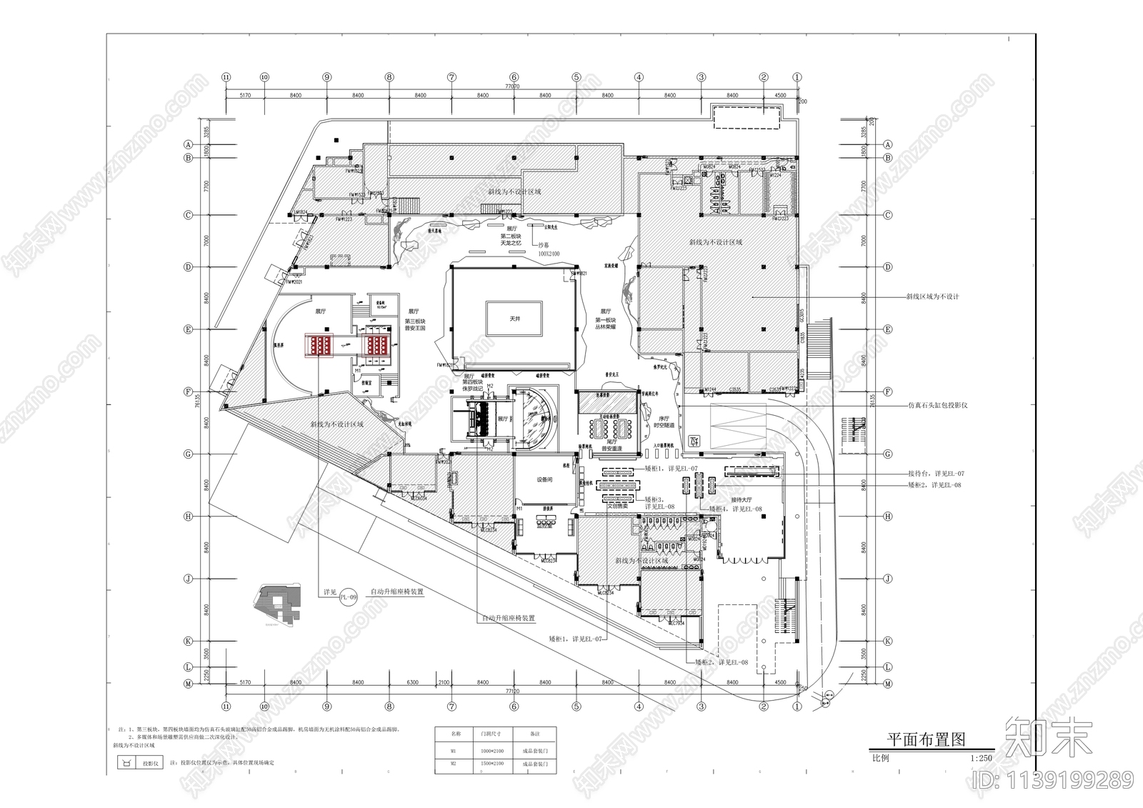
恐龙科普展示中心装饰和安装工程CAD下载
ID: 1139199289
复制
上传作者
曾经的曾经
曾经的曾经上传时间2023-07-12
文件大小43.02M
设计风格:现代简约
CAD版本:CAD2014
包含文件:CAD
授权普通
立即下载
收藏
分享
举报
相关推荐
综合
展厅
科技展厅
展台
企业展厅
文化展厅
家具展厅
汽车展厅
服装展厅
展馆
其他展厅


曾经的曾经上传时间2023-07-12
文件大小43.02M
设计风格:现代简约
CAD版本:CAD2014
包含文件:CAD
授权普通