CAD频道
CAD图库
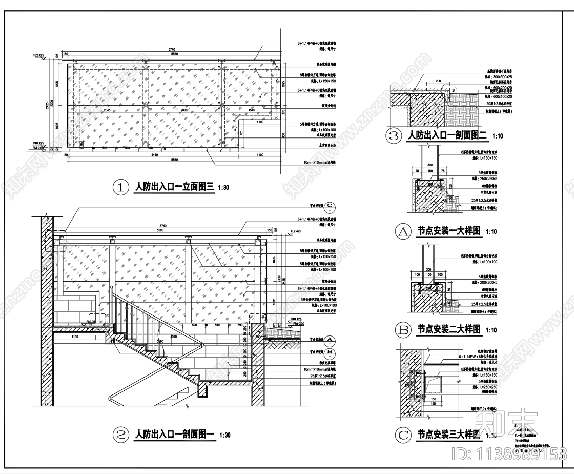
人防出入口雨棚 施工图
1/
2
Previous
Next
人防出入口雨棚CAD下载
ID: 1138989153
复制
上传作者
zf峰哥
上传时间
2023-07-09
文件大小
2.5M
设计风格:
现代简约
CAD版本:
CAD2004
包含文件:
CAD
授权
独家
立即下载
收藏
分享
举报
相关推荐
综合
景观小品
雨棚
亭子
廊架
景墙
综合景观小品
围墙
挡土墙
入口
景观坐凳