CAD频道
CAD图库
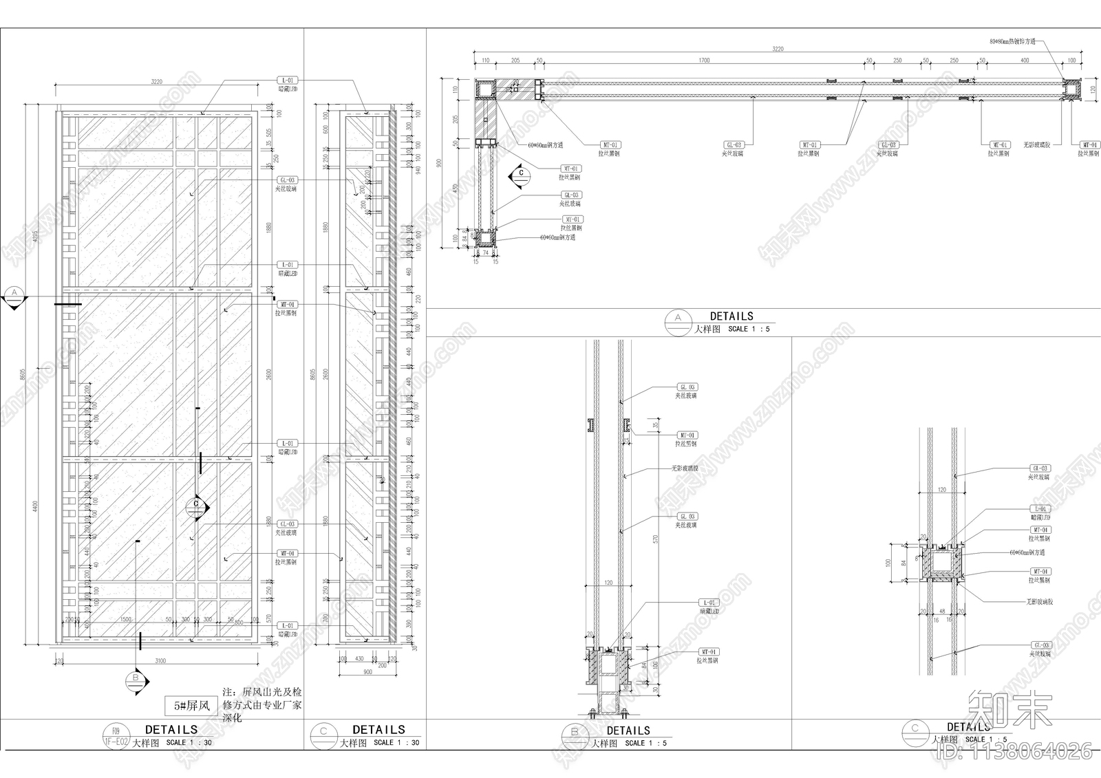
金属造型屏风大样节点 施工图 家具节点 家具节点详图
1/
4
Previous
Next
金属造型屏风大样节点CAD下载
ID: 1138064026
复制
上传作者
小趴菜园
上传时间
2023-06-27
文件大小
4.51M
设计风格:
现代简约
CAD版本:
CAD2004
包含文件:
CAD
授权
独家
立即下载
收藏
分享
举报
相关推荐
综合
硬装构件图库
屏风隔断
背景墙
地面拼花
开关插座
门
五金管件
窗
装饰线条
壁炉