CAD频道
CAD图库
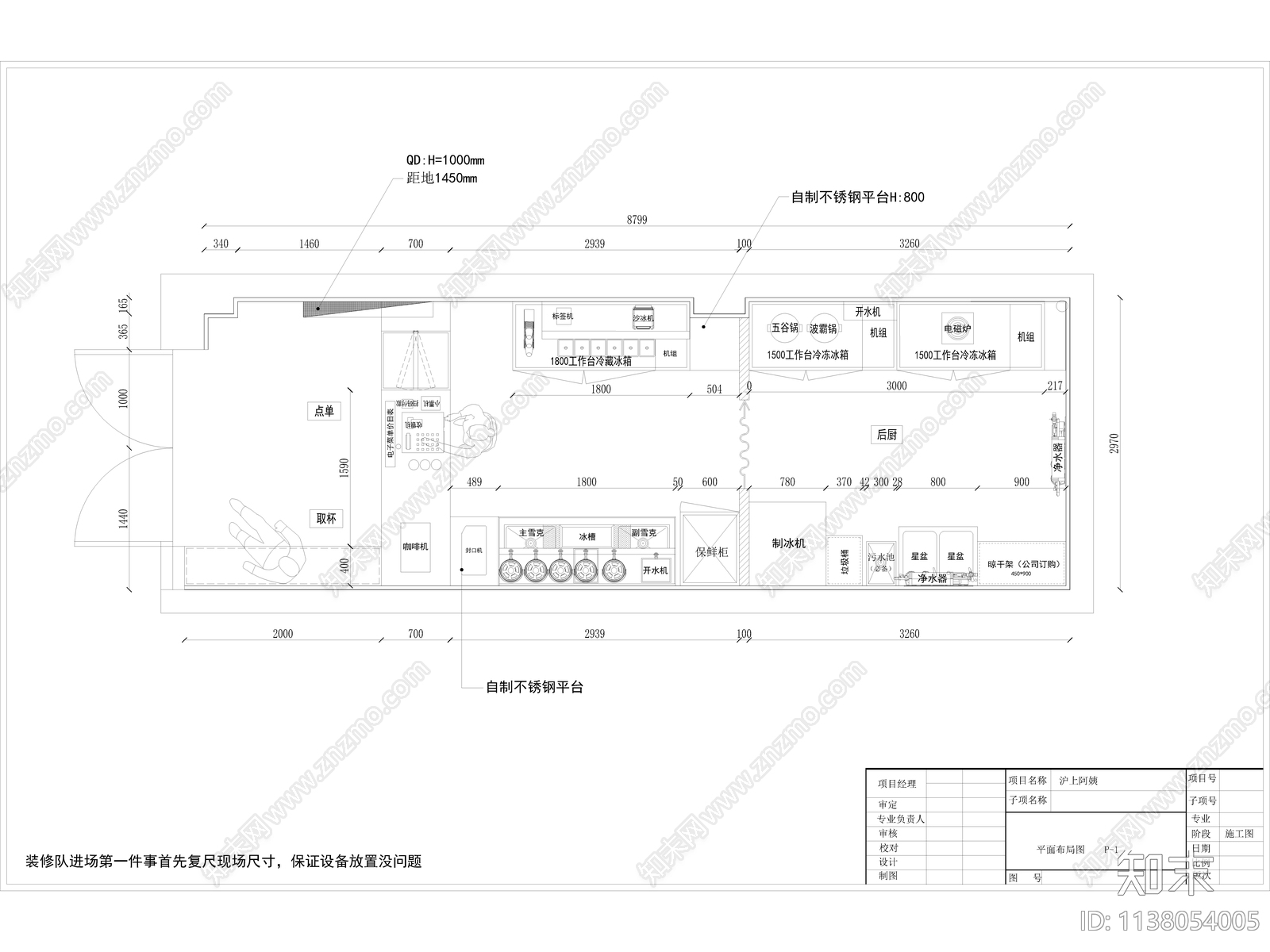
现代奶茶店水吧 施工图
1/
3
Previous
Next
现代奶茶店水吧CAD下载
ID: 1138054005
复制
上传作者
Y
上传时间
2023-06-27
文件大小
2.12M
设计风格:
现代简约
CAD版本:
CAD2007
包含文件:
CAD
授权
独家
立即下载
收藏
分享
举报
相关推荐
综合
餐饮空间
奶茶店
中餐厅
西餐厅
快餐店
自助餐厅
茶餐厅
其他餐饮空间
食堂
咖啡厅