1/10


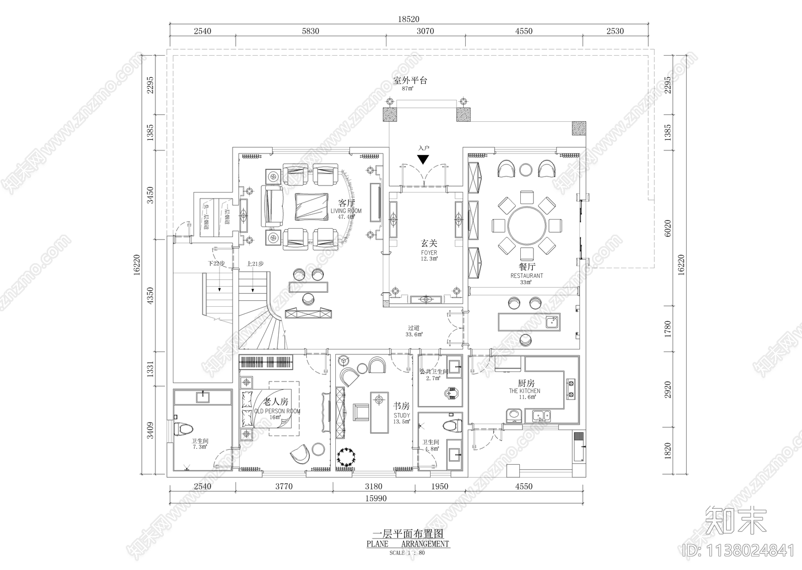
豪华欧式别墅全套室内装修CAD下载
ID: 1138024841
复制
上传作者
DJ-SJ
DJ-SJ上传时间2023-06-27
文件大小7.7M
设计风格:欧式简约
CAD版本:CAD2010
包含文件:CAD
授权独家
立即下载
收藏
分享
举报
相关推荐
综合
家装
别墅
公寓
平层
其他家装空间
家装局部空间
样板间
阳光房
全屋智能
全屋定制


DJ-SJ上传时间2023-06-27
文件大小7.7M
设计风格:欧式简约
CAD版本:CAD2010
包含文件:CAD
授权独家