1/5


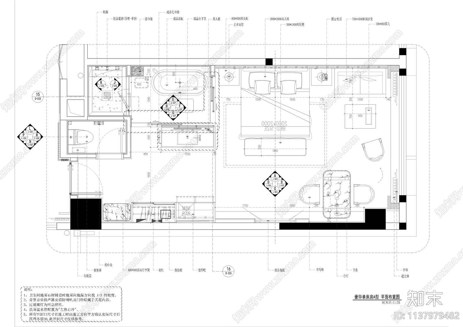
酒现代店客房豪华单床房CAD下载
ID: 1137979482
复制
上传作者
小趴菜园
小趴菜园上传时间2023-06-26
文件大小7.15M
设计风格:现代简约
CAD版本:CAD2004
包含文件:CAD
授权独家
立即下载
收藏
分享
举报
相关推荐
综合
酒店
酒店客房
酒店餐厅
酒店大堂
酒店公区
酒店卫生间
酒店套房
酒店宴会厅
其他酒店


小趴菜园上传时间2023-06-26
文件大小7.15M
设计风格:现代简约
CAD版本:CAD2004
包含文件:CAD
授权独家