CAD频道
CAD图库
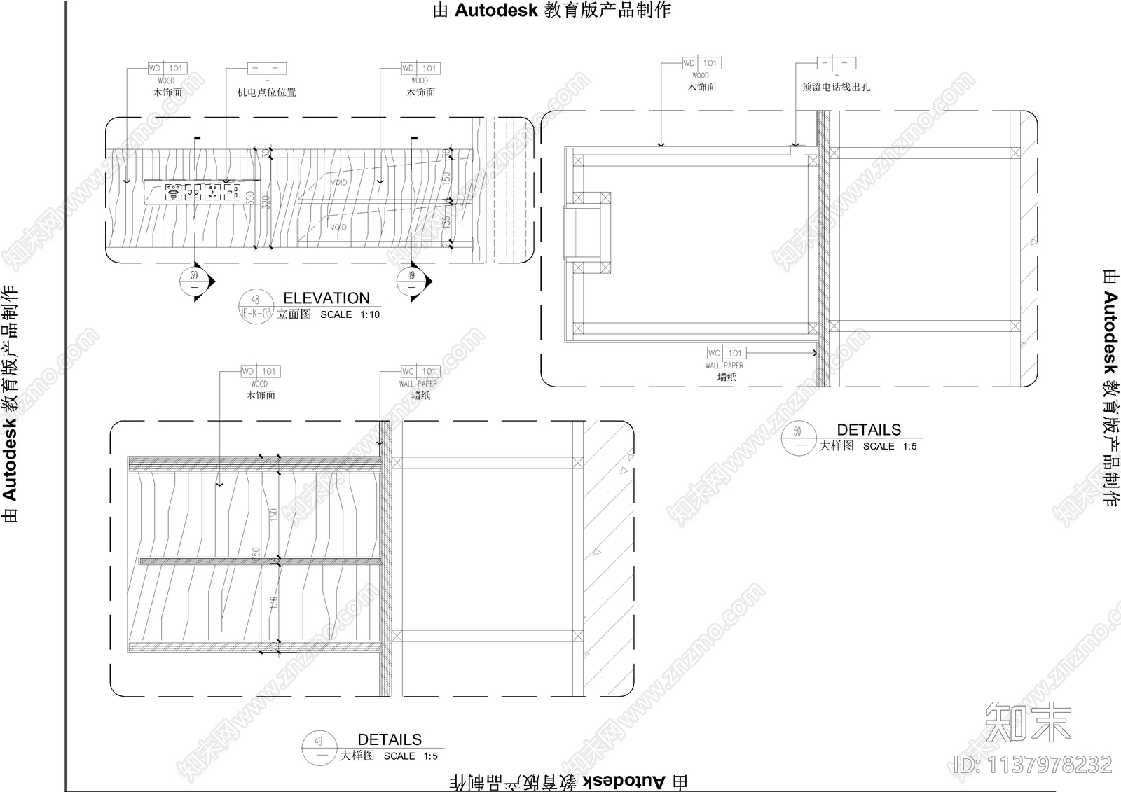
酒店迷你吧衣柜柜体大样 施工图 柜类 家具节点详图
1/
5
Previous
Next
酒店迷你吧衣柜柜体大样CAD下载
ID: 1137978232
复制
上传作者
小趴菜园
上传时间
2023-06-26
文件大小
5.25M
设计风格:
现代简约
CAD版本:
CAD2004
包含文件:
CAD
授权
普通
立即下载
收藏
分享
举报
相关推荐
综合
家具节点详图
柜体节点
吧台节点
壁炉节点
卡座节点
前台节点
综合家具节点