1/2


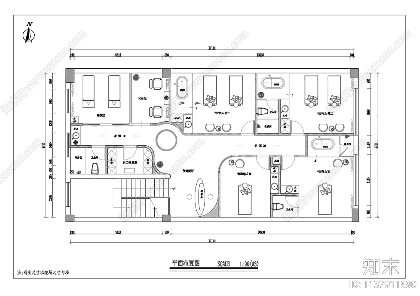
创意美容院平面方案图CAD下载
ID: 1137911590
复制
上传作者
2236511122044
2236511122044上传时间2023-06-25
文件大小0.12M
设计风格:现代简约
CAD版本:CAD2004
包含文件:CAD
授权普通
立即下载
收藏
分享
举报
相关推荐
综合
平面图
工装平面图
景观平面图
规划平面图
其他平面图
小区平面图


2236511122044上传时间2023-06-25
文件大小0.12M
设计风格:现代简约
CAD版本:CAD2004
包含文件:CAD
授权普通