CAD频道
CAD图库
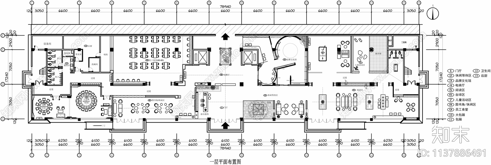
2000平设计办公室平面图
1/
2
Previous
Next
2000平设计办公室平面图CAD下载
ID: 1137886491
复制
上传作者
共同进步
上传时间
2023-06-25
文件大小
0.39M
设计风格:
现代简约
CAD版本:
CAD2000
包含文件:
CAD
授权
独家
立即下载
收藏
分享
举报
相关推荐
综合
平面图
工装平面图
景观平面图
规划平面图
其他平面图
小区平面图