
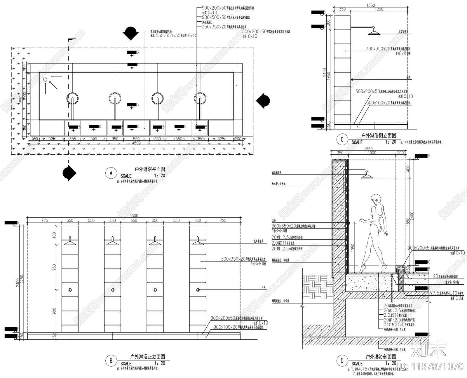
户外泳池淋浴墙CAD下载
ID: 1137871070
复制
上传作者
labububbbbb
labububbbbb上传时间2023-06-25
文件大小0.66M
设计风格:现代简约
CAD版本:CAD2014
包含文件:CAD
授权普通
立即下载
收藏
分享
举报
相关推荐
综合
景观小品
景墙
亭子
廊架
综合景观小品
雨棚
围墙
挡土墙
入口
景观坐凳

labububbbbb上传时间2023-06-25
文件大小0.66M
设计风格:现代简约
CAD版本:CAD2014
包含文件:CAD
授权普通