1/3


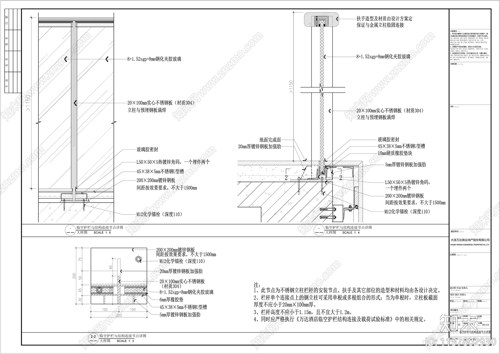
临空护栏节点大样图CAD下载
ID: 1137802930
复制
上传作者
simeng
simeng上传时间2023-06-24
文件大小0.33M
设计风格:现代简约
CAD版本:CAD2004
包含文件:CAD
授权独家
立即下载
收藏
分享
举报
相关推荐
综合
节点详图
楼梯节点
吊顶节点
墙面节点
地面节点
门节点
其他节点详图
建筑工程节点
景观小品
水景


simeng上传时间2023-06-24
文件大小0.33M
设计风格:现代简约
CAD版本:CAD2004
包含文件:CAD
授权独家