1/9


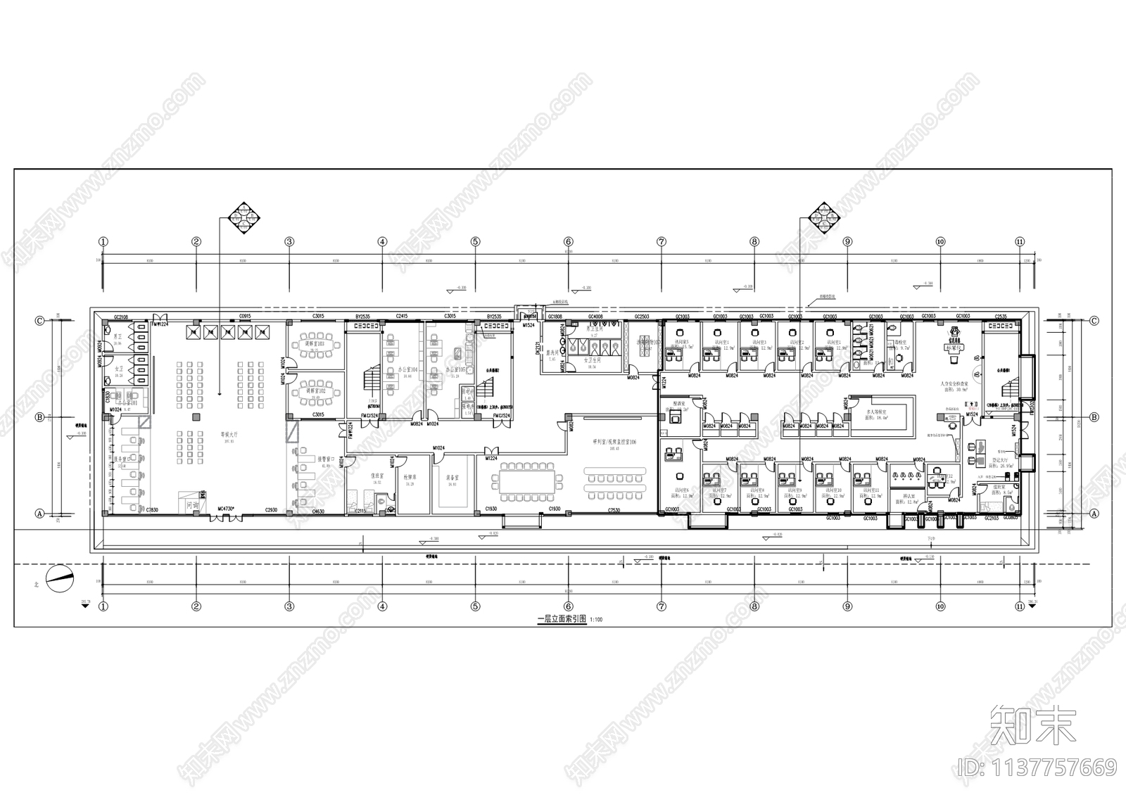
微电园派出所办公室装修工程CAD下载
ID: 1137757669
复制
上传作者
曾经的曾经
曾经的曾经上传时间2023-06-22
文件大小24.58M
设计风格:现代简约
CAD版本:CAD2014
包含文件:CAD
授权独家
立即下载
收藏
分享
举报
相关推荐
综合
公共空间
市政单位
其他公共空间
公共卫生间
宿舍
门头
服务中心
活动中心
会展
母婴室


曾经的曾经上传时间2023-06-22
文件大小24.58M
设计风格:现代简约
CAD版本:CAD2014
包含文件:CAD
授权独家