1/2


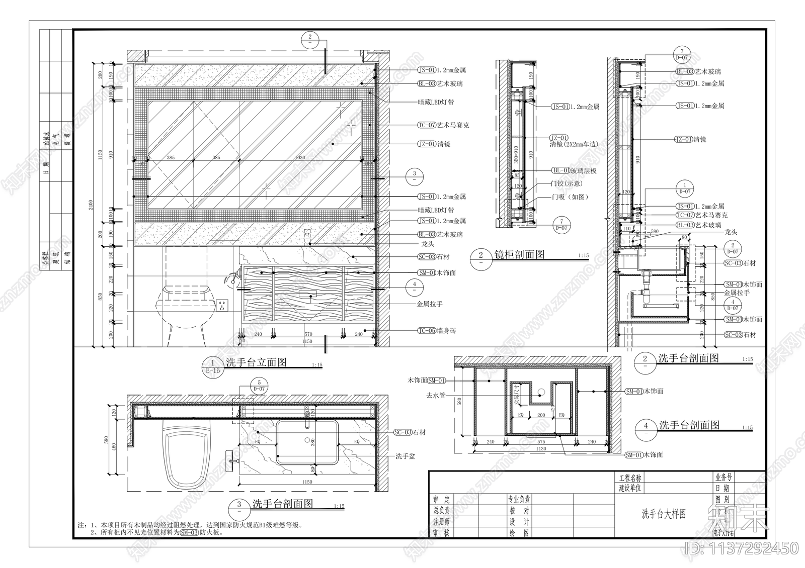
卫生间洗手台CAD下载
ID: 1137292450
复制
上传作者
房屋资料
房屋资料上传时间2023-06-15
文件大小0.35M
设计风格:现代简约
CAD版本:CAD2007
包含文件:CAD
授权独家
立即下载
收藏
分享
举报
相关推荐
综合
卫浴节点
洗手台节点
地漏节点
镜子节点
淋浴房节点
拖把池节点
卫生间防水
卫生间排水
卫生间隔断
卫生间综合节点


房屋资料上传时间2023-06-15
文件大小0.35M
设计风格:现代简约
CAD版本:CAD2007
包含文件:CAD
授权独家