1/10


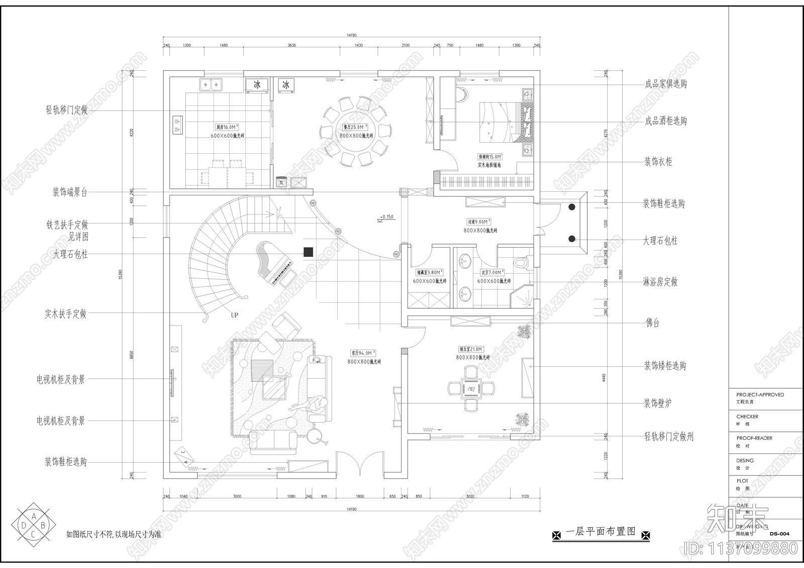
三层豪华别墅全套室内装修CAD下载
ID: 1137099880
复制
上传作者
DJ-SJ
DJ-SJ上传时间2023-06-13
文件大小2.64M
设计风格:现代简约
CAD版本:CAD2010
包含文件:CAD
授权独家
立即下载
收藏
分享
举报
相关推荐
综合
家装
别墅
公寓
平层
其他家装空间
家装局部空间
样板间
阳光房
全屋智能
全屋定制


DJ-SJ上传时间2023-06-13
文件大小2.64M
设计风格:现代简约
CAD版本:CAD2010
包含文件:CAD
授权独家