CAD频道
CAD图库
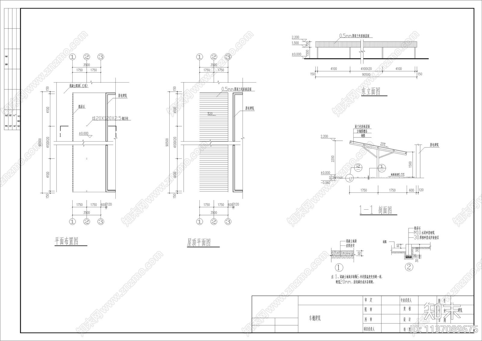
某单排钢结构自车棚 施工图 景观小品
1/
2
Previous
Next
某单排钢结构自车棚CAD下载
ID: 1137089675
复制
上传作者
海洋孤岛
上传时间
2023-06-13
文件大小
0.17M
设计风格:
现代简约
CAD版本:
CAD2016
包含文件:
CAD
授权
普通
立即下载
收藏
分享
举报
相关推荐
综合
景观小品
综合景观小品
亭子
廊架
景墙
雨棚
围墙
挡土墙
入口
景观坐凳