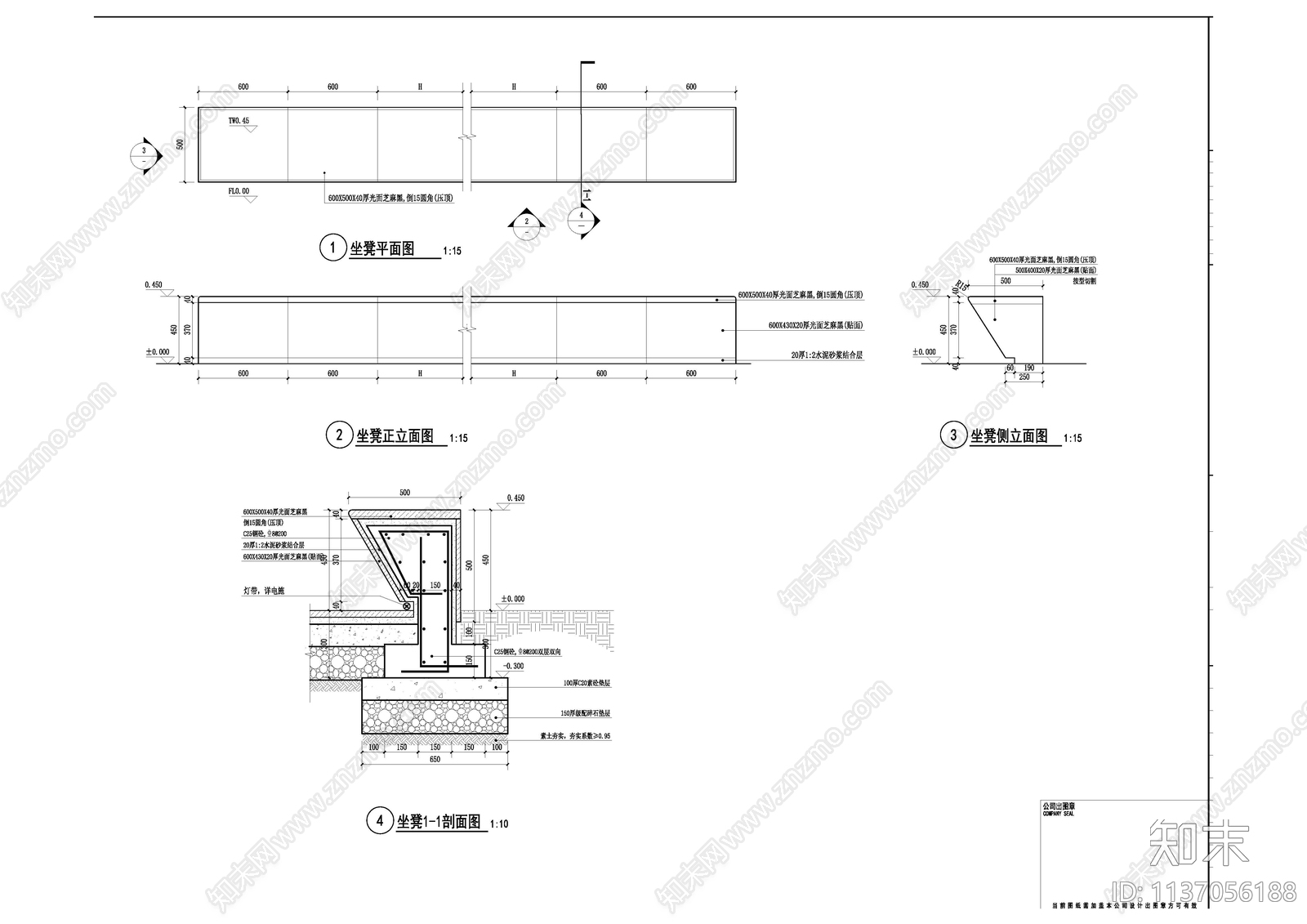
异形条石座凳施工图下载【ID:1137056188】

异形条石座凳CAD下载

ID: 1137056188
复制
上传作者
浪子不回头浪子不回头

上传时间2023-06-12

文件大小0.11M

设计风格:现代简约

CAD版本:CAD2004

包含文件:CAD

授权独家

立即下载
收藏
分享
举报
相关推荐
综合
景观小品
综合景观小品
亭子
廊架
景墙
雨棚
围墙
挡土墙
入口
景观坐凳