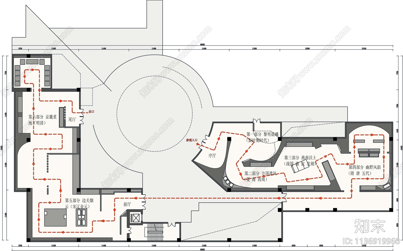
廊坊博物馆展厅平面图施工图下载【ID:1136919960】

廊坊博物馆展厅平面图CAD下载

ID: 1136919960
复制
上传作者
十八年窖藏十八年窖藏

上传时间2023-06-10

文件大小2.89M

设计风格:现代简约

CAD版本:CAD2007

包含文件:CAD

授权独家

立即下载
收藏
分享
举报
相关推荐
综合
展厅
展馆
展台
企业展厅
文化展厅
科技展厅
家具展厅
汽车展厅
服装展厅
其他展厅