1/10


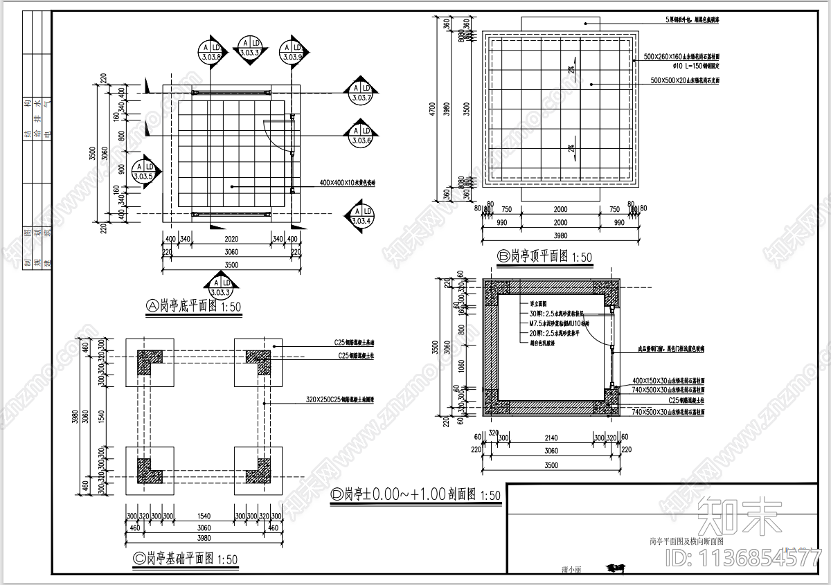
成品岗亭CAD下载
ID: 1136854577
复制
上传作者
李某的某(关注必回)
李某的某(关注必回)上传时间2023-06-09
文件大小0.9M
设计风格:现代简约
CAD版本:CAD2004
包含文件:CAD
授权独家
立即下载
收藏
分享
举报
相关推荐
综合
建筑
其他建筑
居住建筑
办公工业建筑
商业建筑
酒店民宿建筑
交通建筑
规划设计
古建
教育建筑


李某的某(关注必回)上传时间2023-06-09
文件大小0.9M
设计风格:现代简约
CAD版本:CAD2004
包含文件:CAD
授权独家