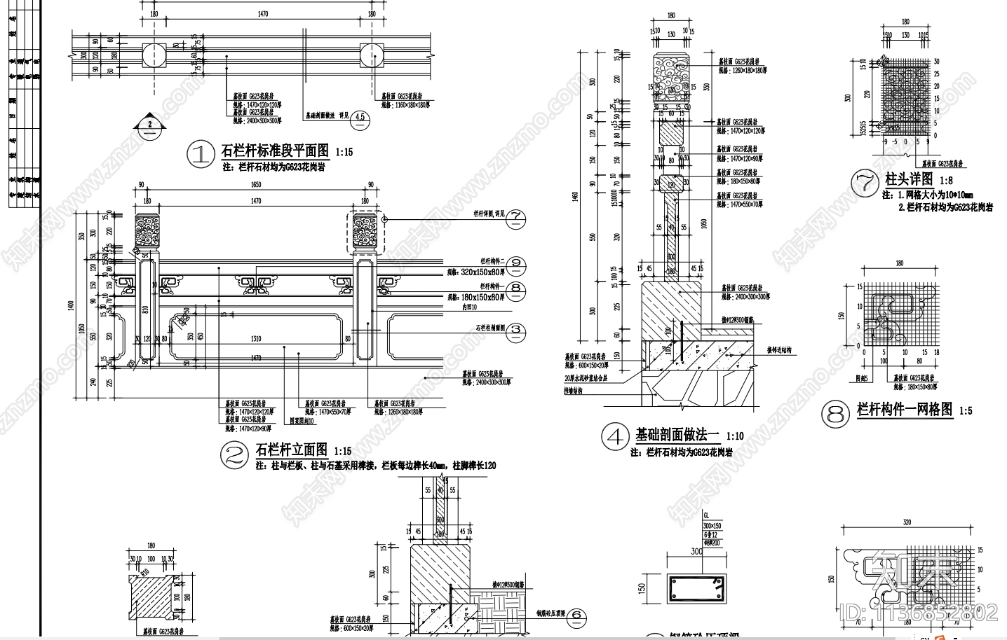
石栏杆施工图下载【ID:1136852802】

石栏杆CAD下载

ID: 1136852802
复制
上传作者
景观施工图专业户景观施工图专业户

上传时间2023-06-09

文件大小0.8M

设计风格:现代简约

CAD版本:CAD2010

包含文件:CAD

授权独家

立即下载
收藏
分享
举报
相关推荐
综合
景观小品
栏杆
亭子
廊架
景墙
综合景观小品
雨棚
围墙
挡土墙
入口