CAD频道
CAD图库
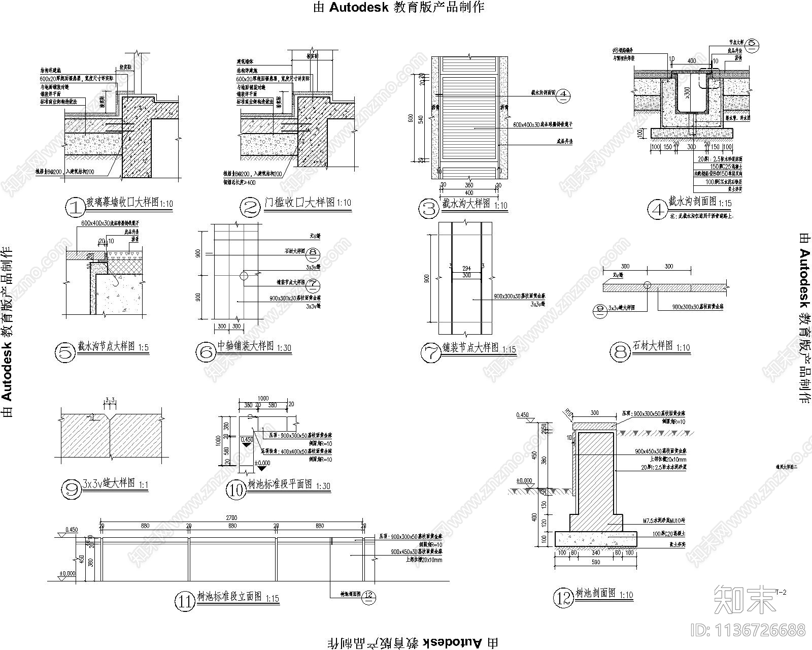
园林景观通用大样 施工图
1/
2
Previous
Next
园林景观通用大样CAD下载
ID: 1136726688
复制
上传作者
FA...
上传时间
2023-06-08
文件大小
1.58M
设计风格:
现代简约
CAD版本:
CAD2010
包含文件:
CAD
授权
独家
立即下载
收藏
分享
举报
相关推荐
综合
景观小品
综合景观小品
亭子
廊架
景墙
雨棚
围墙
挡土墙
入口
景观坐凳