CAD频道
CAD图库
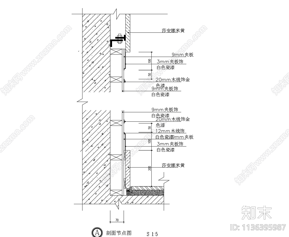
木饰面挂板墙面顶面 施工图 通用节点
1/
5
Previous
Next
木饰面挂板墙面顶面CAD下载
ID: 1136395987
复制
上传作者
小小鱼鱼
上传时间
2023-06-04
文件大小
0.45M
设计风格:
现代简约
CAD版本:
CAD2000
包含文件:
CAD
授权
独家
立即下载
收藏
分享
举报
相关推荐
综合
室内工艺节点
其他室内工艺节点