CAD频道
CAD图库
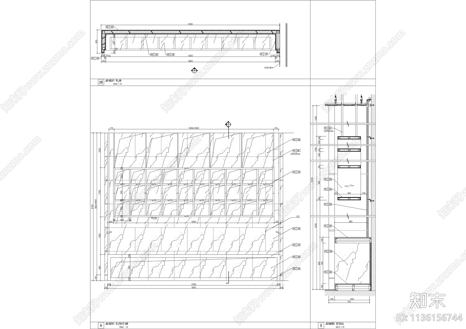
面包房柜及背景吊柜节点大样 施工图 柜类 家具节点详图
1/
4
Previous
Next
面包房柜及背景吊柜节点大样CAD下载
ID: 1136156744
复制
上传作者
xin图
上传时间
2023-05-31
文件大小
1.85M
设计风格:
现代简约
CAD版本:
CAD2004
包含文件:
CAD
授权
普通
立即下载
收藏
分享
举报
相关推荐
综合
家具节点详图
柜体节点
吧台节点
壁炉节点
卡座节点
前台节点
综合家具节点