CAD频道
CAD图库
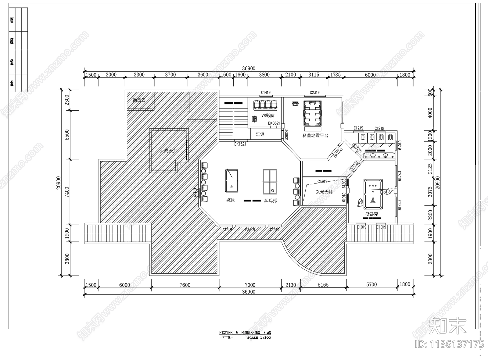
科技馆活动中心VR体验中心 施工图 科技馆 科技馆
1/
4
Previous
Next
科技馆活动中心VR体验中心CAD下载
ID: 1136137175
复制
上传作者
商业空间
上传时间
2023-05-31
文件大小
38.33M
设计风格:
现代简约
CAD版本:
CAD2010
包含文件:
CAD
授权
独家
立即下载
收藏
分享
举报
相关推荐
综合
交通建筑
服务区
机场建筑
客运站
加油站
驿站
其他交通建筑
车站