CAD频道
CAD图库
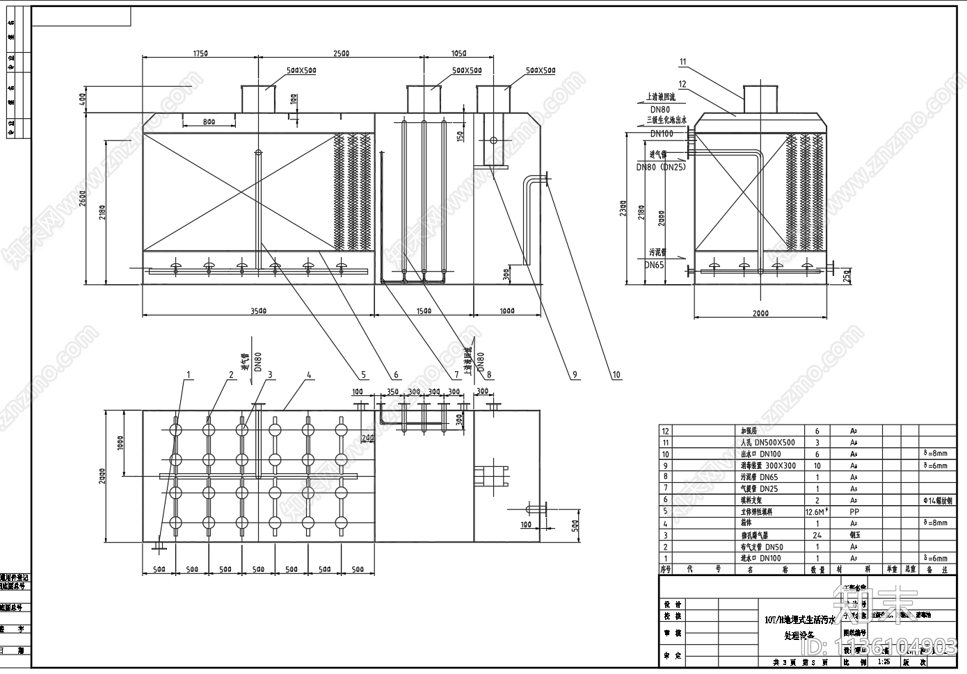
10吨地理式污水处理设备 施工图
1/
4
Previous
Next
10吨地理式污水处理设备CAD下载
ID: 1136104903
复制
上传作者
小小鱼鱼
上传时间
2023-05-31
文件大小
0.13M
设计风格:
现代简约
CAD版本:
CAD2000
包含文件:
CAD
授权
独家
立即下载
收藏
分享
举报
相关推荐
综合
电气工程节点
水处理节点
给排水节点详图
暖通节点
电气节点
其他电气工程节点