CAD频道
CAD图库
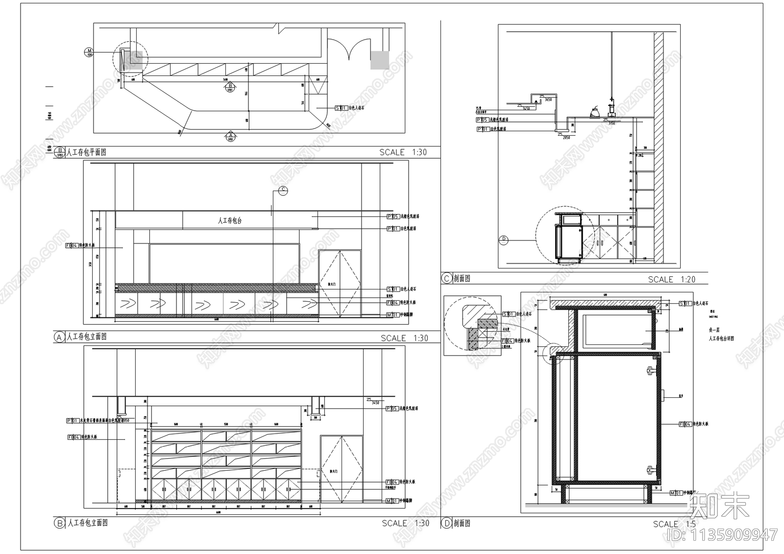
现代超市人工存包台推车区详图 施工图 家具节点
1/
2
Previous
Next
现代超市人工存包台推车区详图CAD下载
ID: 1135909947
复制
上传作者
花开富贵
上传时间
2023-05-28
文件大小
0.23M
设计风格:
现代简约
CAD版本:
CAD2014
包含文件:
CAD
授权
普通
立即下载
收藏
分享
举报
相关推荐
综合
家具节点详图
综合家具节点
吧台节点
壁炉节点
柜体节点
卡座节点
前台节点