1/3


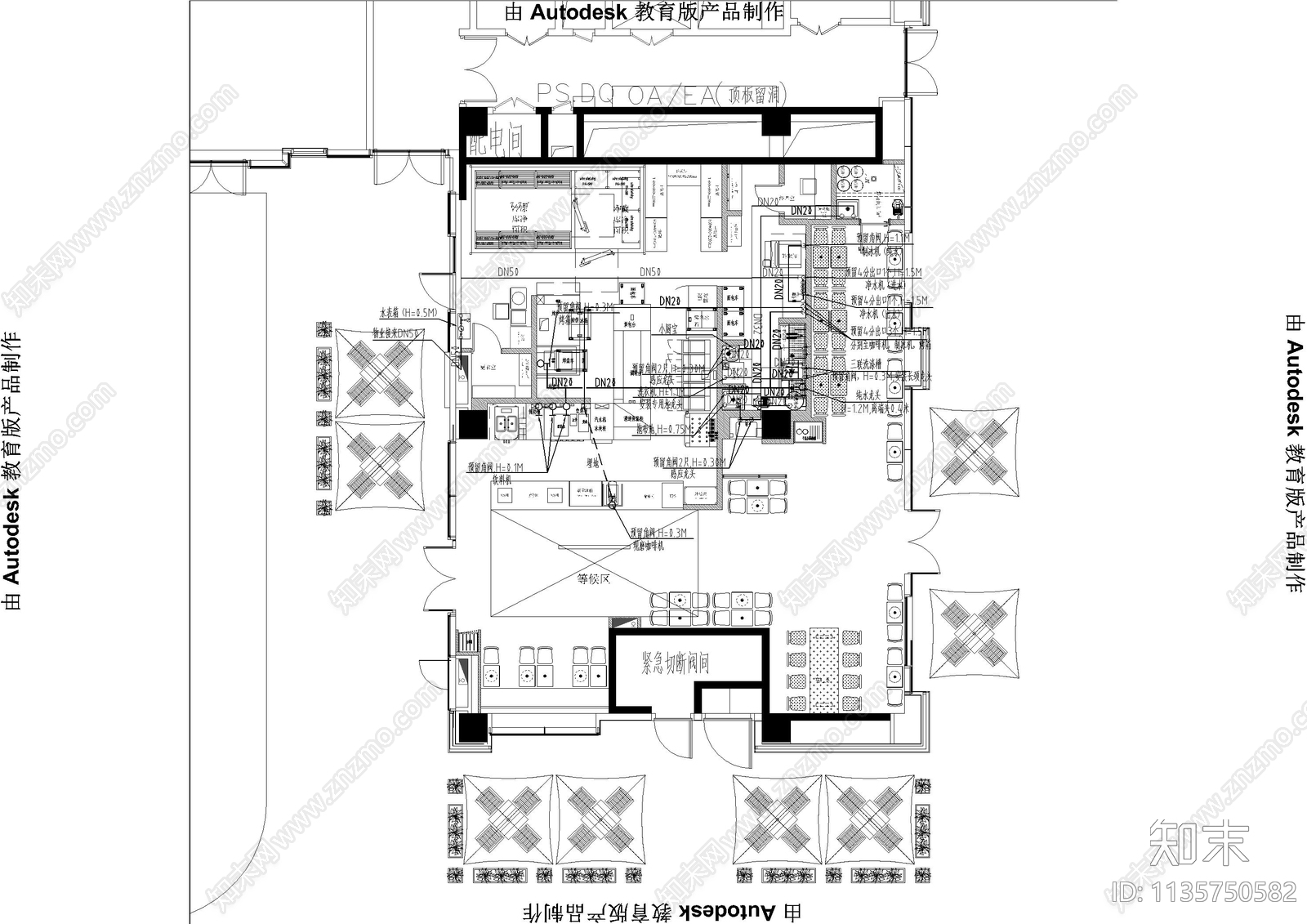
餐厅给排水CAD下载
ID: 1135750582
复制
上传作者
小趴菜园
小趴菜园上传时间2023-05-25
文件大小2.22M
设计风格:现代简约
CAD版本:CAD2004
包含文件:CAD
授权独家
立即下载
收藏
分享
举报
相关推荐
综合
机电工程
建筑给排水
给排水图
水处理
暖通空调
电气图
电气工程节点
消防设施
机械设备
其他机电图纸


小趴菜园上传时间2023-05-25
文件大小2.22M
设计风格:现代简约
CAD版本:CAD2004
包含文件:CAD
授权独家