CAD频道
CAD图库
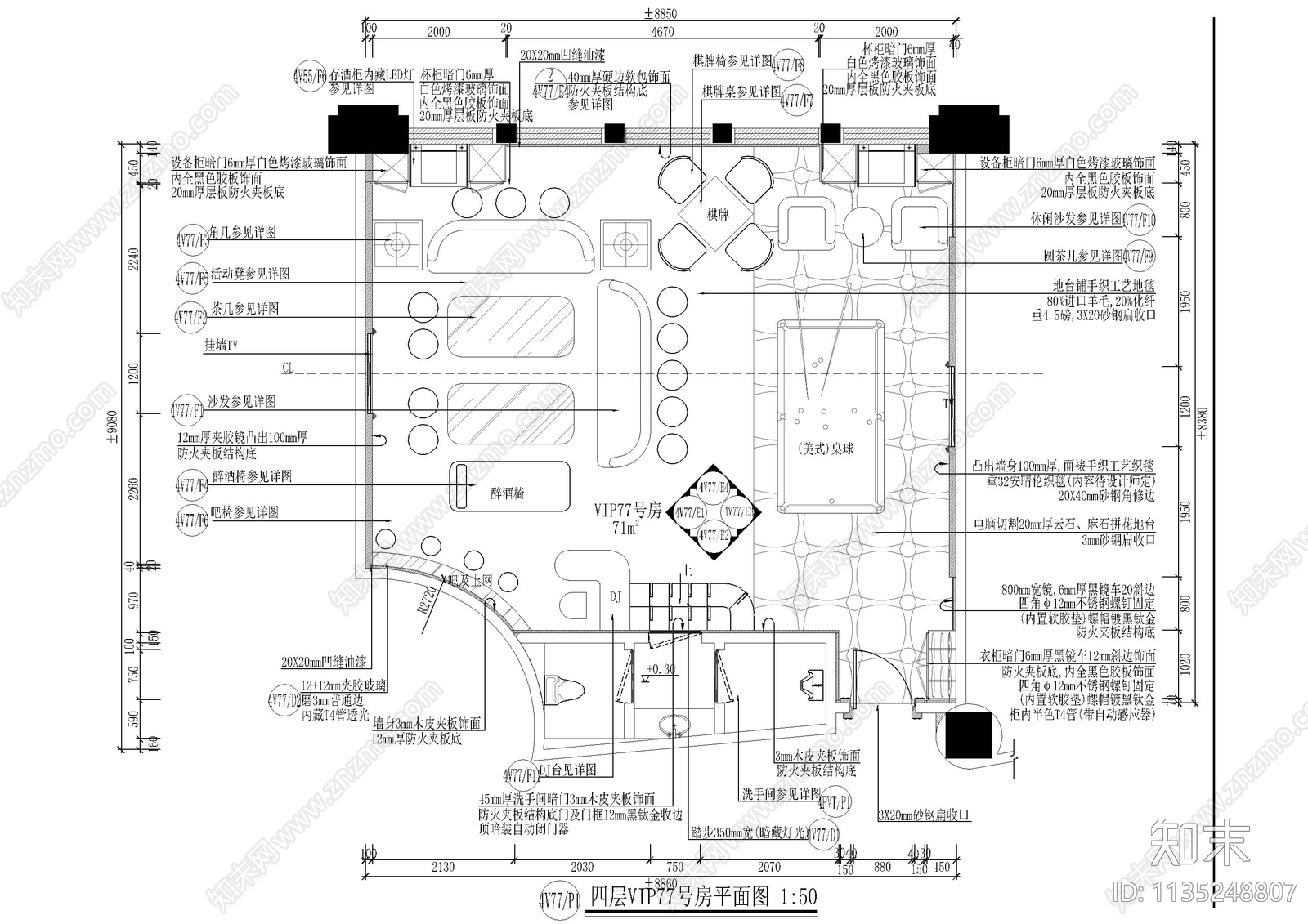
KTV包房大包房装修 施工图
1/
4
Previous
Next
KTV包房大包房装修CAD下载
ID: 1135248807
复制
上传作者
小趴菜园
上传时间
2023-05-18
文件大小
4.15M
设计风格:
现代简约
CAD版本:
CAD2004
包含文件:
CAD
授权
独家
立即下载
收藏
分享
举报
相关推荐
综合
休闲娱乐空间
KTV
会所
美容院
理发店
电影院
茶馆
健身房
酒吧
网吧