CAD频道
CAD图库
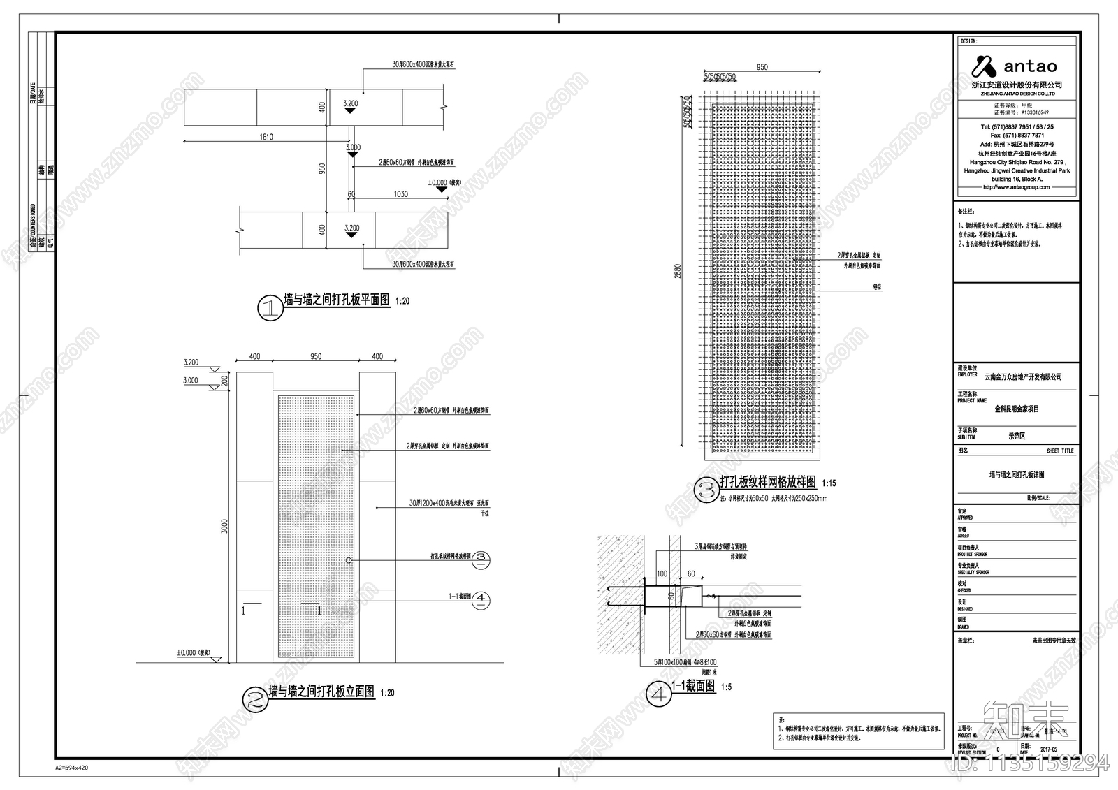
穿孔铝板灯箱 施工图
1/
4
Previous
Next
穿孔铝板灯箱CAD下载
ID: 1135159294
复制
上传作者
悍匪派大星
上传时间
2023-05-17
文件大小
0.92M
设计风格:
现代简约
CAD版本:
CAD2012
包含文件:
CAD
授权
独家
立即下载
收藏
分享
举报
相关推荐
综合
景观小品
综合景观小品
亭子
廊架
景墙
雨棚
围墙
挡土墙
入口
景观坐凳