CAD频道
CAD图库
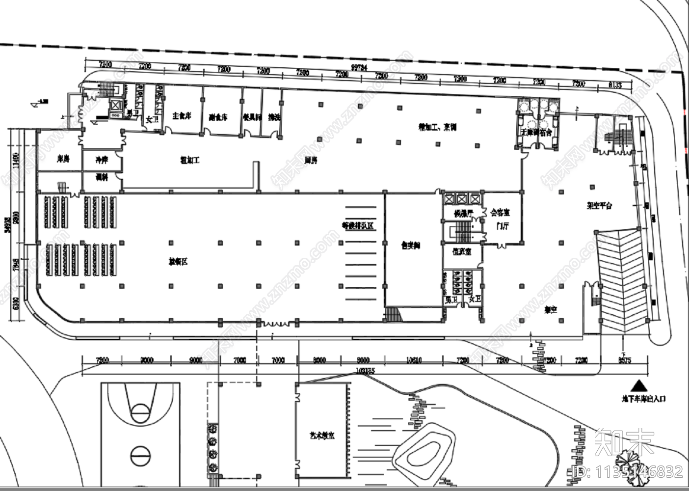
学校食堂平面图
1/
3
Previous
Next
学校食堂平面图CAD下载
ID: 1135146832
复制
上传作者
GqZZ
上传时间
2023-05-17
文件大小
0.2M
设计风格:
现代简约
CAD版本:
CAD2008
包含文件:
CAD
授权
独家
立即下载
收藏
分享
举报
相关推荐
综合
平立面系统图
建筑平面图
平面图
立面图/剖面图
家装平面图