CAD频道
CAD图库
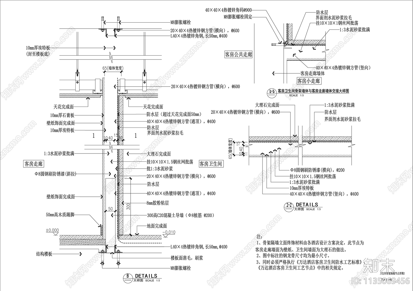
室内卫生间骨架隔墙节点 施工图 墙面节点
1/
4
Previous
Next
室内卫生间骨架隔墙节点CAD下载
ID: 1135069456
复制
上传作者
设计不设计
上传时间
2023-05-16
文件大小
0.27M
设计风格:
现代简约
CAD版本:
天正CAD4.0
包含文件:
CAD
授权
独家
立即下载
收藏
分享
举报
相关推荐
综合
墙面节点
背景墙节点
轻钢龙骨隔墙
壁龛节点
隔音墙节点